静岡県東部エリア

工務店・新築・一戸建て・注文住宅・リノベ会社を検索できるくふうイエタテ

注文住宅、リフォーム住宅会社を探す

住宅会社 住宅イベント モデルハウス リフォーム・リノベーション 土地・建売 住まいのプロ 動画 家づくりガイド くふうイエタテカウンター
施工対応エリア
静岡県東部全域、神奈川県西部、山梨県南部
電話番号
050-5871-8749
ジャンル
新築 、 リフォーム 、 土地相談
資料請求無料 検討会社に追加する

20畳LDKの平屋。細⾧い土地を活かした家族の気配を感じられる家

お気入り
クリップ
N邸  物件エリア:伊豆の国市  家族構成:夫婦+子ども
一級建築士事務所 GO_AN (ゴアン)【デザイン住宅、建築家、平屋】濃紺の外観が周囲の緑にマッチするN邸。敷地の細長さにあわせてプランニングした平屋
一級建築士事務所 GO_AN (ゴアン)【デザイン住宅、建築家、平屋】玄関は扉に合わせて無垢の木を張り、落ち着いた雰囲気に仕上げた
一級建築士事務所 GO_AN (ゴアン)【デザイン住宅、建築家、平屋】玄関ホールは無垢のフローリング。1畳のシューズクロークは十分な広さを確保
一級建築士事務所 GO_AN (ゴアン)【デザイン住宅、建築家、平屋】広々とした20畳のLDK。屋根の形状を生かし吹き抜けとロフトを設けた。床はペットの犬に優しい木目調のビニールタイル。キッチンには来客時に玄関とのコミュニケーションが取れる小窓を取り付けた
一級建築士事務所 GO_AN (ゴアン)【デザイン住宅、建築家、平屋】ステンレス天板のキッチンに、手元が隠せるよう高めのカウンターを造作で。部屋の奥に見える火打梁は構造上出てしまうが、黒く塗装したことでドライフラワーやエアプランツも映える
一級建築士事務所 GO_AN (ゴアン)【デザイン住宅、建築家、平屋】陶器の流しに合わせて造作した洗面台。周囲にはタイルを貼ってかわいらしく仕上げた
一級建築士事務所 GO_AN (ゴアン)【デザイン住宅、建築家、平屋】玄関脇の手洗いには奥さまお気に入りの鏡をセット
一級建築士事務所 GO_AN (ゴアン)【デザイン住宅、建築家、平屋】ロフトに上がる階段は、ご主人の希望で収納もできるよう造作した
濃紺の外観が周囲の緑にマッチするN邸。敷地の細長さにあわせてプランニングした平屋
玄関は扉に合わせて無垢の木を張り、落ち着いた雰囲気に仕上げた
玄関ホールは無垢のフローリング。1畳のシューズクロークは十分な広さを確保
広々とした20畳のLDK。屋根の形状を生かし吹き抜けとロフトを設けた。床はペットの犬に優しい木目調のビニールタイル。キッチンには来客時に玄関とのコミュニケーションが取れる小窓を取り付けた
ステンレス天板のキッチンに、手元が隠せるよう高めのカウンターを造作で。部屋の奥に見える火打梁は構造上出てしまうが、黒く塗装したことでドライフラワーやエアプランツも映える
陶器の流しに合わせて造作した洗面台。周囲にはタイルを貼ってかわいらしく仕上げた
玄関脇の手洗いには奥さまお気に入りの鏡をセット
ロフトに上がる階段は、ご主人の希望で収納もできるよう造作した

横浜のアパート暮らしだったNさん夫妻。子どもの成長にともない手狭になったこともあり、ふたりの地元である県東部への移住・新築を考え始めたという。地元とはいえ、当時は片道1時間半の距離。建築会社探しはもっぱらインターネットやフリーペーパーで、「ここだ!」と思えるような土地・メーカーに出合うには1年近くかかった。やっと見つけた土地だったが、その細長さから、問合せしたメーカーには断られることが多かったそう。ところが『GO_AN』の近藤さんだけが、「ここだったらいけるんじゃないかと思います。おもしろそうですね、やってみましょう、考えてみましょう」と言ってくれ家づくりをスタートできた。打合せ前に土地を見てきた近藤さんに「もうイメージができています」と言われ驚いたとNさんは振り返る。完成した住宅は、居住スペースから庭までフラットにつながる平屋。リビングに自然と家族が集まるこの家で、Nさん一家は3年目の春を迎えようとしている。

資料・カタログをもらう無料 オンライン相談・来店予約
お届けするカタログ・資料の内容
一級建築士事務所GO_AN「会社パンフレット」イベント情報 会社パンフレット、過去施工例集、イベント情報をお送りします。
資料・カタログをもらう
送付資料

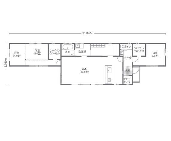
間取り

間取りタイプ
3LDK / 2階建
(ロフト)
  • 1F
    一級建築士事務所 GO_AN (ゴアン) 20畳LDKの平屋。細⾧い土地を活かした家族の気配を感じられる家 1F
スタッフ写真

スタッフからのコメント

一般的には特殊な形状の土地でしたが、そこは腕の見せ所。Nさん夫妻の要望を取り入れつつ、周囲の自然環境も生活に取り込める家に仕上がりました。

代表 一級建築士・近藤 剛さん

物件情報

本体価格 1500万〜1999万 ※金額は購入当時のものです
設計者名 一級建築士事務所GO_AN
施工社名 一級建築士事務所GO_AN
施工期間 4か月
外部仕上げ(屋根) ガルバリウム鋼板
外部仕上げ(外壁) サイディング
内部仕上げ(床) 木目調ビニール、フローリング
内部仕上げ(内壁) クロス
内部仕上げ(天井) クロス
内部仕上げ(断熱材) グラスウール
使用メーカー(バス) LIXIL
使用メーカー(トイレ) LIXIL
使用メーカー(キッチン) LIXIL
使用メーカー(照明) オーデリック、ダイコー
使用メーカー(窓・サッシ) YKK AP
資料・カタログをもらう無料 オンライン相談・来店予約
お届けするカタログ・資料の内容
一級建築士事務所GO_AN「会社パンフレット」イベント情報 会社パンフレット、過去施工例集、イベント情報をお送りします。
資料・カタログをもらう
送付資料

その他の新築施工例 ({{max}}件)

一級建築士事務所 GO_AN (ゴアン)

家族、空間、自然がつながる「住み手が育つ器」を建築家と創る
  • 本社所在地 静岡県駿東郡長泉町東野137-221
  • 施工対応エリア 静岡県東部全域、神奈川県西部、山梨県南部
  • 電話番号 050-5871-8749
  • ジャンル 新築、 リフォーム、 土地相談

お客さまの声

お客さまの写真

普通のメーカーさんだと営業さん、設計士さんと役割がわかれていますが、『GO_AN』さんの場合は、「近藤さん」だったので、私たちの意思がしっかりと現場に活かされてありがたかったです。

新築したきっかけ

子どもが生まれてから、隣の物音や子どもの声が周りの家にどう聞こえるかが気になりだしました。また、2人とも地元がこちらなので、実家が近いところでのんびり子育てできたらいいなというのも重なり、家を建てようかなと考え始めました。

ロード中