静岡県中部エリア
他のエリア
工務店・新築・一戸建て・注文住宅・リノベ会社を検索できるくふうイエタテ
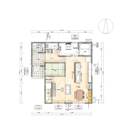
4LDK / 2階建
北道路 31坪1,795万(月々4.6万円)
この4LDKの住まいは、施主の「整理整頓をしやすくしたい」という強い要望に応え、多彩な収納スペースを随所に取り入れています。各部屋に備わるクローゼットに加え、玄関やリビングには収納棚を配置し、家全体をスッキリと保つことができます。また、趣味やリモートワークに最適なスペースも確保。2階には静かで集中できる書斎が設けられ、施主の日々の創造性や仕事をサポートします。さらに、リビングから続く広々としたバルコニーや緑豊かな庭園は、外の空間とつながる心地よさを提供し、家族と過ごすくつろぎの場を演出します。これにより、収納、趣味、自然が調和する、充実したライフスタイルを実現します。
4LDK・2階建
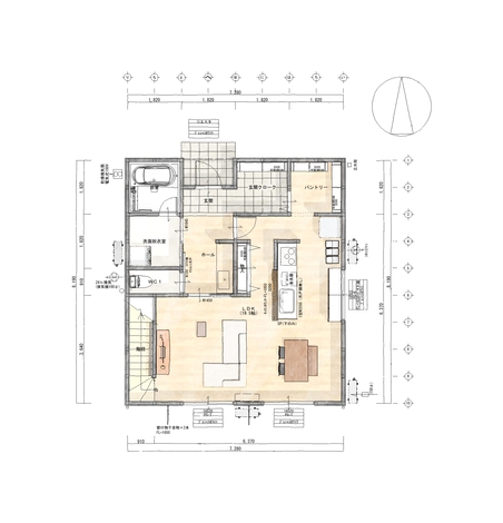
3LDK / 2階建
東道路 32坪2,051万(月々5.2万円)
この2階建て3LDKの間取りは、施主の「収納スペースが豊富で整理整頓しやすい」「家事が効率的にできる」という要望を中心に設計されています。一階のリビングダイニングとキッチンはオープンプランで設計され、キッチンからの視線を遮られることなく家族の様子を見守りながら家事を行える工夫が施されています。また、キッチンの背面には大容量のパントリーを設け、食材や調理器具の収納も充実。さらに、各居室には大型のクローゼットを完備し、片付けが楽になることで日々の生活にゆとりをもたらします。この住まいは、忙しい施主のライフスタイルをサポートし、快適な暮らしを実現します。
3LDK・2階建
延床面積:108.47m² [32.81坪]
2LDK / 平屋
西道路 22坪1,458万(月々3.7万円)
この平屋住宅は、施主のライフスタイルと要望を反映し、快適で機能的な空間を創り出します。2LDKの間取りは、豊富な収納スペースを随所に配置し、整理整頓がしやすい設計となっています。特にリビングは、広々としたデザインで家族がゆったりとくつろぎ、リラックスできる場を提供します。また、各部屋は適切に配置され、プライバシーをしっかりと確保。これにより、施主が心から安らげる住まいとなり、日々の暮らしに快適さと落ち着きをもたらします。シンプルな動線と使いやすい配置が、忙しい日常においても効率的な生活をサポートします。この間取りで、施主の求めるプライベート感と収納に対するニーズが見事に実現されています。
2LDK・平屋
4LDK / 2階建
南道路 32坪2,000万(月々5.1万円)
この4LDKは、家族が心地よく過ごせる空間と、効率的な家事動線を実現するための設計が特徴です。広々としたリビングは、大きな窓から自然光が降り注ぎ、家族団らんの場としてゆったりとした時間を過ごせるよう工夫されています。キッチンからダイニング、リビングへと続く動線は、料理や掃除がスムーズに行えるよう最適化され、忙しい日々の家事負担を軽減します。また、各部屋は個々のプライバシーを尊重しつつ、安全で快適な空間を提供し、家族ひとりひとりのライフスタイルを大切にします。この間取りは、くつろぎと効率を重視する施主の要望をしっかりと感じさせる設計です。
4LDK・2階建
3LDK / 平屋
北道路 25坪1,495万(月々3.8万円)
この3LDKの平屋住宅は、住む人が豊かな自然光を感じながら、心地よく過ごせるよう設計されています。日々の生活の中で、朝から晩まで部屋全体に明るさをもたらす窓の配置が工夫されています。また、各部屋に十分な収納スペースを確保し、物の整理整頓がしやすい環境を提供します。これにより、すっきりとした空間を維持し、自分のライフスタイルに合った快適な住まいを実現。そして、フラットな平屋構造により、家族皆が安全で便利に暮らすことができ、自然と共に過ごす心豊かな毎日をサポートします。
3LDK・平屋
3LDK / 2階建
東道路 27坪1,500万(月々4.1万円)
この2階建て3LDKの間取りは、施主が求める明るさと収納力を最大限に引き出すデザインが施されています。まず、各部屋の大きな窓からはたっぷりと自然光が差し込み、家全体に明るさと開放感をもたらします。南向きのリビングルームでは、朝から夕方まで太陽の恵みを存分に受けることができ、家族の憩いの場として最適な空間を提供します。加えて、豊富な収納スペースもこの家の特徴。適所に配置されたクローゼットやパントリー、さらに主寝室にはウォークインクローゼットを完備し、住まい全体を整理整頓しやすくする工夫が凝らされています。この間取りにより、家族一人ひとりの生活シーンが充実し、快適で爽やかな暮らしが実現します。
3LDK・2階建
3LDK / 2階建
西道路 33坪1,982万(月々5.1万円)
この2階建て3LDKの間取りは、施主のライフスタイルを最大限に活かす設計となっています。豊富な収納スペースを各部屋に取り入れることで、家中がすっきりと整理整頓され、日々の生活がより快適になります。キッチンを中心に据えた家事動線は、動きを最小限にし、効率的で機能的な生活をサポートします。また、大きな窓や天窓の配置により、自然光がたっぷりと差し込む明るい空間を実現。家全体が心地よい光に包まれ、家族全員がリラックスして過ごせる環境を提供します。日々の家事効率が向上し、住まう人が自然と笑顔になる、そんな住まいです。
3LDK・2階建 (WIC・パントリー・シューズクローク・納戸)
3LDK / 平屋
南道路 29坪1,842万(月々4.7万円)
この平屋の3LDKプランは、施主の求める「ゆったりとくつろげるリビング」と「豊富な収納スペース」、そして「効率的な家事動線」を実現するために考え抜かれたものです。広々としたリビングは家族が自然に集まり、リラックスした時間を過ごせる場として設計され、南向きの大きな窓からは柔らかい日差しが注ぎ込みます。また、各部屋には十分な収納スペースを確保し、整理整頓を簡単にすることで、いつでもすっきりとした生活空間を維持できます。さらに、キッチンから洗面所、浴室までの動線を工夫することで家事が効率的に行える設計となっており、日々の生活が快適で機能的にサポートされています。この間取りは、施主が理想とするシンプルで心地よいライフスタイルを可能にします。
3LDK・平屋 (WIC・パントリー)
3LDK / 2階建
西道路 30坪1,740万(月々4.3万円)
この2階建ての3LDKは、施主の要望を丁寧に叶えた設計となっています。リビングは広々としており、自然光がたっぷりと差し込む明るい空間が広がっています。 豊富な収納スペースは整理整頓をサポートし、快適な生活をもたらします。家族が集まり、くつろぐことができる暖かな住まいとなるでしょう。
3LDK・2階建 (WIC・パントリー・シューズクローク付き)
4LDK / 2階建
東道路 30坪1,750万(月々4.5万円)
リビングは広く、家族がゆったりくつろげる空間として設計されており、豊富な収納スペースは整理整頓をサポート。特定用途に特化した収納スペースも設け、生活をさらに快適に。明るい光を取り込みつつ、施主の要望を丁寧に取り入れた上質な空間が広がります。
4LDK・2階建 (水廻り2階・階段下収納・WIC)
2LDK / 平屋
北道路 22坪1,370万(月々3.5万円)
平屋2LDKの間取りは、ゆとりあるリビングでくつろぎながらプライバシーを確保。趣味や仕事に集中できるスペースも完備し、施主の要望を叶える。 環境と共に、心地よいライフスタイルを実現します。
2LDK・平屋 (広々玄関・WIC・パントリー・納戸)
3LDK / 2階建
北道路 35坪2,060万(月々5.3万円)
リビングでゆったりと寛ぎつつ、吹き抜けからの開放感が心地よい空間。収納スペースの豊富さで整理整頓も楽々。施主の要望を反映し、快適で使いやすいライフスタイルを提供します。
3LDK・2階建 (大型WIC・納戸・パントリー・シューズクローク・吹抜け付き)
3LDK / 2階建
【10月モデルハウス完成予定!】南道路 32坪1,95万(月々5.0万円)
収納スペースが豊富で整理整頓がしやすく、家事が効率的に行える設計。リビングからは庭に出やすく、自然の中でくつろぎつつも快適な生活が可能。 使い勝手のよさが、この住まいの魅力を引き立たせます。
3LDK・2階建
延床面積:105.99m² [32.06坪]
2LDK / 平屋
東道路 23坪1,580万(月々4.0万円)
この2LDKの平屋スタイルは、施主の要望を踏まえ、ゆったりとしたリビングでくつろぎながら自然光が豊富に差し込む明るい空間を実現しています。 各部屋はプライバシーを大切にしつつ、開放感もしっかりと確保。自然との調和が感じられる間取りは、施主のライフスタイルにぴったりとマッチし、心地よい暮らしを提供します。
2LDK・平屋
延床面積:76.18m² [23.04坪]
4LDK / 2階建
南道路 34坪1,995万(月々5.1万円)
広々としたリビングは、ゆったりとくつろぎながら自然を感じられる心地よい空間。使い勝手の良いキッチンと収納スペースが家事を効率的にサポート。各部屋は充実のスペースで、家族のライフスタイルや趣味に合わせた使い方が可能。庭やバルコニーとのつながりがあり、四季折々の自然を楽しむおこもり空間が提供される。施主の要望を叶えながら、家族が豊かな暮らしを楽しむための住まいとなっています。
4LDK・2階建
延床面積:56.31m² [17.03坪]
2LDK / 平屋
2人暮らし平屋 東道路南玄関 24坪1,540万(月々3.9万円)
自然光満ちる2LDKの平屋。収納スペースを豊富に取り入れ、整理整頓をサポート。趣味や仕事に専念できるスペースも確保し、明るく暖かなライフスタイルを提供します。
2LDK・平屋
延床面積:81.98m² [24.79坪]
4LDK / 2階建
南道路 34坪2,027万(月々5.2万円)
この2階建ての4LDK間取りは、施主の要望を叶える明るさと快適さを追求したものです。各部屋に設けられた大きな窓からたっぷりと自然光が差し込み、開放感のある吹き抜けが家中に広がります。家事を効率的にこなせるように、各スペースの配置にも工夫が凝らされており、快適な生活を実現します。施主のライフスタイルに寄り添いながら、明るく開放的な空間が日々の生活を豊かに彩ります。
4LDK・2階建
3LDK / 2階建
北道路 36坪1990万(月々5.1万円)
2階建ての間取りは、施主の要望を叶えるために設計されました。広々としたリビングでゆったりとくつろぎながら、効率的に家事を行うことができます。吹き抜けから差し込む自然光が開放感を演出し、心地よい空間を演出します。この間取りは、施主のライフスタイルに合わせてデザインされ、快適な生活を実現します。
3LDK・2階建 (WIC・パントリー・シューズクローク・吹抜け付き)
3LDK / 平屋
平屋 東道路 28坪1,770万(月々4.5万円)
玄関の隣にはシューズクローク。 パントリーとつながっているので、買い物の荷物もラクラク運び入れができます。 水回りも回遊となっているので、家事ラク導線が叶います。 また、ウォークインクローゼットや物入も随所に完備。 平屋のスペースを余すことなく活用し、住みやすさを追求した人気の間取りです。
3LDK・平屋 (WIC・パントリー・シューズクローク付き)
3LDK / 平屋
使い勝手抜群!コンパクト24坪3LDK
この間取りは自然光をたっぷり取り入れ、明るく開放的な空間を実現します。家事を効率的に行えるレイアウトで、庭やバルコニーとの一体感があります。施主の要望をしっかりと反映し、快適な生活スタイルを実現する魅力あふれるプランです。
3LDK・平屋
3LDK / 平屋
収納たっぷり27坪3LDK平屋暮らし
この3LDKの平屋は、ゆったりとくつろげるリビングを中心に、収納スペースが豊富で整理整頓がしやすいレイアウトとなっています。家事を効率的に行うことができるので、忙しい現代の生活にも最適です。自然と調和する暮らしを求める施主の要望を反映し、心地よい空間を提供します。
3LDK・平屋
3LDK / 平屋
自然光満ちる明るい空間 25坪3LDK平屋の魅力
この3LDKの平屋は、施主の要望を叶える理想的な住まいです。広々とした空間に自然光がたっぷり差し込み、明るさと開放感が満ち溢れています。各部屋は効率的な家事動線で繋がり、日常の忙しさをサポート。さらに、各部屋の配置がプライバシーを重視し、家族がリラックスできる安らぎの空間を提供します。この間取りは、暮らしを豊かにするライフスタイルを実現するための理想的な選択です。
3LDK・平屋
2LDK / 平屋
社員自邸♪ 収納充実 27坪2LDKの平屋
2LDKの平屋間取りは、ゆったりとしたリビングと豊富な収納スペースが特徴。庭やバルコニーとのつながりがリラックスできる空間を提供し、整理整頓もしやすく、快適な生活を叶えます。
2LDK・平屋
4LDK / 2階建
39坪4LDK 書斎のある暮らし
この2階建て4LDKの間取りは、施主の要望に応える理想の暮らしを実現します。広々としたリビングは家族がゆったりとくつろぎながらも、収納スペースが豊富に配置され、家事を効率的にこなすことができます。整理整頓がしやすく快適な暮らしをサポートする間取りとなっており、ライフスタイルの変化にも柔軟に対応します。
4LDK・2階建
4LDK / 2階建
収納たっぷり36坪4LDK 自在なくつろぎ空間
4LDKの間取りでは、豊富な収納スペースが整理整頓をサポートし、特定用途に特化した収納スペースは利便性を高めます。広々としたリビングはくつろぎの場として、家族や友人と楽しい時間を過ごすことができます。施主の要望を踏まえ、収納に重点を置いたこのプランは、快適なライフスタイルとスッキリとした空間づくりを可能にします。
4LDK・2階建
3LDK / 2階建
自然と調和する31坪3LDKの家
庭やバルコニーとのつながりが重視されたこの2階建ての3LDKは、プライバシーを確保しつつ自然と調和できる空間を提供します。開放的なリビングはゆったりとくつろぎながら日常を楽しむことができ、施主の要望を踏まえたライフスタイルを実現します。
3LDK・2階建
4LDK / 2階建
31坪4LDKの収納充実住宅
この階層2階建ての4LDK間取りは、特定用途に特化した収納スペースを重視し、収納スペースが豊富で整理整頓しやすい構造が特徴です。施主の要望を叶えるため、ゲストを気軽に招くことができる開放的なリビングエリアや使い勝手の良いキッチンなど、ライフスタイルに合わせた機能も充実しています。施主のニーズに寄り添い、快適な生活を演出することをコンセプトに設計された間取りです。
4LDK・2階建
3LDK / 2階建
書斎を備えた32坪3LDKの家 - 収納と快適な生活を兼ね備えた住まい
この2階建ての3LDK間取りは、施主の要望を徹底的に叶えた魅力的な空間です。特定用途に特化した収納スペースが豊富に確保され、家事を効率的にこなすことができる工夫が凝らされています。また、ゆったりとしたリビングは家族や友人とのくつろぎの時間を演出し、快適な生活を実現します。施主のライフスタイルと要望を的確に捉えた、機能美に満ちた住まいで、日々の生活がより豊かになること間違いありません。
3LDK・2階建
3LDK / 2階建
開放感のある吹抜けが魅力の30坪リラックス空間
2階建ての3LDK間取りは、施主の要望を余すことなく叶えます。吹き抜けから溢れる開放感がリビングを包み込み、くつろぎの空間を演出します。各部屋へのアクセスがスムーズで、家事も効率的にこなせる設計は、忙しい日常にも対応可能。施主のライフスタイルを豊かに彩る理想の住まいです。
3LDK・2階建
3LDK / 2階建
自然な流れる暮らしを実現する 30坪3LDK家
この2階建ての3LDKの間取りは、施主の要望を丁寧に反映しました。広々としたリビングはくつろぎの空間として設計され、豊富な収納スペースは物の整理整頓をサポートします。さらに、配置された窓や通路は自然な空気の流れを促進し、居心地の良い環境をつくり出します。これにより、快適な暮らしやすさと自然との調和を感じる暮らしを可能にします。
3LDK・2階建
3LDK / 2階建
自然光満ちる28坪3LDK、家事を効率化した収納スペース充実の住まい
この2階建ての3LDKは、施主の要望に応える理想の間取りです。特定用途に特化した収納スペースが豊富に配置され、家事を効率的にこなすことができます。さらに、広々とした窓からたっぷりと自然光が差し込み、明るく心地よい空間を演出。快適な居住空間での生活が叶います。
3LDK・2階建
3LDK / 2階建
自然光満ちる、家事効率的な31坪3LDK設計
この2階建ての3LDKは、自然光がたっぷりと差し込む設計で、明るく開放的な空間を演出します。施主の要望に応え、キッチンからリビング、寝室までの配置は家事を効率的に行えるよう計画されています。収納スペースも豊富で、整理整頓がしやすく、快適な暮らしをサポートします。ライフスタイルを豊かにするこの間取りは、快適さと機能性を兼ね備え、施主の暮らしをより充実させる空間となるでしょう。
3LDK・2階建
3LDK / 2階建
26坪3LDK 自然光溢れる広々とした暮らし
3LDKの2階建て間取りは、施主の要望を満たす理想の空間です。リビングは広々としており、自然光がたっぷりと差し込みます。家事が効率的に行えるレイアウトは生活をサポートし、ゆったりとくつろげる空間を提供します。明るく開放的な設計は、施主のライフスタイルに合わせた快適さを実現し、家族や友人とのひとときを豊かに演出します。
3LDK・2階建
3LDK / 平屋
自然光溢れる22坪3LDKの平屋
この平屋の3LDKは、収納スペースが豊富で整理整頓がしやすく、自然光がたっぷりと差し込む明るい空間が魅力です。特にリビングはゆったりとした広さで、日常生活を心地良く過ごすことができます。施主の要望を丁寧に叶える設計となっており、日々の生活がより快適に豊かになるライフスタイルをサポートします。
3LDK・平屋
2LDK / 平屋
自然な暮らしを支える 2LDK 平屋
広々としたリビングはくつろぎの空間。効率的な家事動線で忙しい日々をサポート。各部屋の配置がプライバシーを守りながら家族の絆を深める。生活を豊かに彩る理想の空間がここに。
2LDK・平屋
2LDK / 平屋
自然な暮らしを楽しむ平屋の暮らし
広々とした2LDKの平屋は家事を効率的にこなしながら、プライバシーを確保できる理想の住まいです。開放感あふれるリビングと洗練された寝室、使い勝手の良いキッチンスペースが、施主のニーズに合った快適なライフスタイルを演出します。
2LDK・平屋
3LDK / 平屋
自然光満ちる明るい空間 3LDK の魅力
この提案された3LDKの間取りは、自然光をたっぷり取り入れることに焦点を当てています。各部屋に十分な窓が配置され、明るく開放的な雰囲気を演出しています。さらに、リビング・ダイニング・キッチンが繋がりやすく、ゲストを招きやすいレイアウトとなっています。また、各部屋間のつながりがあり、家事を効率的に行えるよう設計されています。この間取りは、施主の要望を叶えつつ明るく快適な生活を実現する空間となっています。
3LDK・平屋
2LDK / 平屋
自然光溢れる、収納豊富な平屋生活
提案された2LDKの平屋は、自然光がたくさん差し込む開放的な空間と、豊富な収納スペースが特長です。明るくて整理整頓しやすい間取りは、施主の要望を満たすだけでなく、プライバシーも確保できる理想的なライフスタイルを実現します。
2LDK・平屋
3LDK / 平屋
収納豊富な3LDK平屋の広々リビング
この3LDKの平屋は、収納スペースが豊富に取り入れられており、整理整頓がしやすく快適な生活をサポートします。特に、広々としたリビングスペースは、施主がゆったりとくつろぎながら家族や友人との時間を楽しむことができる環境を提供します。暮らしやすさと居心地の良さを兼ね備えた間取りは、施主の要望を満たしつつ、居住空間全体に温かみと快適さをもたらします。
3LDK・平屋
3LDK / 平屋
自然と調和する癒しのスペース
この平屋の3LDKは、収納スペースが豊富で整理整頓がしやすく、リビングはゆったりとくつろげる空間が確保されています。プライバシーを重視しつつも、自然と調和するデザインが施主の要望を満たし、日常生活を豊かなものにするライフスタイルを提供します。
3LDK・平屋
3LDK / 平屋
自然な流れとプライバシーを融合するモダンな平屋
この3LDKの平屋は、プライバシーを確保しつつ自然な空気の流れを促進する設計となっています。リビングは広々としており、ゆったりとくつろげる空間を提供します。施主の要望を念頭に置きながら、開放感と居住性を両立させた理想的な住空間を実現しています。
3LDK・平屋
3LDK / 平屋
自然光溢れる広々リビングの3LDK平屋
この提案された3LDK平屋は、施主の要望を完璧に満たす間取りです。リビングは自然光が豊富に射し込み、広々としてゆったりとした空間が広がっています。明るい設計は心地よい居住空間を演出し、施主のライフスタイルに調和します。
3LDK・平屋
3LDK / 平屋
収納豊富な平屋 3LDK
収納スペースが豊富で整理整頓がしやすい3LDKの平屋。家事を効率的にこなせるレイアウトが施主の要望にマッチし、各居室がプライバシーを確保。生活感を上品に纏めつつ、快適なライフスタイルを叶えます。
3LDK・平屋
3LDK / 平屋
開放感あふれる1階建て住宅
広々とした3LDKの間取りが、施主の要望にぴったり満たします。リビングはゆったりとした空間でくつろげるだけでなく、家事も効率的にこなせます。さらに、リビングから庭やバルコニーにアクセスできるため、自然との調和を感じながらライフスタイルを楽しめます。
3LDK・平屋
3LDK / 平屋
自然な空気と家事の効率が共存する平屋の魅力
3LDKの間取りは家事を効率的に行いながら、自然な空気の流れを促進します。施主の要望を満たすと同時に、快適なライフスタイルを提供します。家族が自然に集まり、居心地の良い空間を楽しむことができます。
3LDK・平屋
4LDK / 2階建
自然と調和する4LDKの家
リラックスできるゆったりとしたリビングスペースがあり、庭やバルコニーとのつながりを感じさせる設計。ゲストを招きやすいレイアウトで、生活と自然が調和したライフスタイルを提供します。
4LDK・2階建
4LDK / 2階建
プライバシーと快適なゲスト歓待を両立した4LDKの家
施主のプライバシーを重視しつつ、庭やバルコニーとの調和を図った4LDKの間取り。リビング・ダイニングからは庭が一望でき、ゲストを招くにも快適な空間。各部屋の配置はプライバシーを確保しつつも、家族が一緒に過ごす時間を大切にした家づくり。生活スタイルに合わせた使い勝手の良さが特長で、暖かい居心地の良い空間が広がります。
4LDK・2階建
4LDK / 2階建
自然光満ちる広々リビングと緑豊かなつながりが魅力の4LDK
施主の要望を踏まえたこの4LDKの間取りは、くつろぎと快適さを重視した設計となっています。リビングはゆったりと広く、自然光がたっぷりと差し込むことで明るい雰囲気を演出。さらに、庭やバルコニーへのアクセスが容易な配置で、居住空間と屋外との一体感を感じさせます。施主のライフスタイルに合わせた理想の住まいを実現する間取りとなっており、毎日の生活がより豊かで心地よいものとなるでしょう。
4LDK・2階建
3LDK / 2階建
自然光あふれる3LDKの暮らし
リビングは程よい広さで、家事も楽々。各部屋は陽光が差し込む明るい空間で、庭やバルコニーとのつながりが心地よい。暮らしを豊かにする理想の住まいです。
3LDK・2階建
3LDK / 2階建
庭と調和する3LDKの家
この2階建ての3LDKの間取りは、家事を効率的にこなしつつ、庭やバルコニーとのつながりを大切にした施主の要望を満たす設計となっています。リビングはゆったりとしたスペースで、家族がくつろぐ場所として最適です。自然光がたっぷり差し込む間取りは心地良い暮らしを叶え、家族が日々快適に過ごせるライフスタイルを実現します。
3LDK・2階建
4LDK / 2階建
自然光満ちる4LDKの使い勝手
この2階建ての4LDKは、家事を効率的にこなす施主の要望に応えるとともに、豊富な収納スペースと明るい設計で整理整頓をサポートします。各部屋に配置された大きな窓からたっぷりと差し込む自然光は、心地よい居住空間を演出し、快適で明るい生活を叶えます。配置によりプライバシーを守りつつ、家族が集まるリビングやゆとりのある寝室など、様々なニーズに応える使い勝手の良さも魅力です。整理整頓をサポートする収納スペースの充実は、ストレスのない日常を実現し、施主のライフスタイルをさらに充実させることでしょう。
4LDK・2階建
4LDK / 2階建
自然と調和する暮らし
施主の要望を踏まえた4LDKの2階建て間取りは、家事を効率的にこなしながら自然な空気の流れを取り入れることが可能です。リビング・ダイニング・キッチンからは庭やバルコニーに簡単にアクセスでき、開放感あふれる空間が生まれます。家族が一緒に過ごす時間を大切にしながら、忙しい日々でもリフレッシュできる居心地の良い環境を提供します。
4LDK・2階建
3LDK / 2階建
"自然なくつろぎと使い勝手を追求した3LDKの魅力"
この2階建ての3LDKは施主の要望を忠実に反映し、ゆったりとくつろげるリビングエリアや豊富な収納スペースを特長としています。特定用途に特化した収納スペースも設けられ、整理整頓がしやすく快適な生活をサポートします。シンプルで機能的な間取りは、暮らしのストレスを軽減し、家族のライフスタイルに合った居住空間を提供します。
3LDK・2階建
4LDK / 2階建
自然光溢れる家族の学び舎
4LDKの2階建て間取りは子供達が集中して勉強できるスペースを確保し、リビングから庭やバルコニーへのアクセスを重視。各部屋に自然光が溢れ、健やかな空気の流れを促進。家族のニーズを満たし、穏やかなライフスタイルを提供します。
4LDK・2階建
4LDK / 2階建
プライバシーと豊かな暮らしを実現する4LDKの住宅
この2階建ての4LDKの間取りは、収納スペースを豊富に設けることで整理整頓をサポートし、プライバシーを重視した配置が施主の要望に応えます。広々としたリビングはゆったりとくつろぐ空間を提供し、家族の絆を深める場として機能します。暮らしに寄り添い、機能と居心地の良さを両立した間取りは、施主に上質な生活空間をお届けします。
4LDK・2階建
4LDK / 2階建
快適な生活空間への道
2階建ての4LDK間取りは、収納スペースを豊富に確保し、整理整頓がしやすくなっています。各部屋の配置により、プライバシーが確保され、家族がゆったりとくつろげるリビングが実現されます。施主の要望を踏まえたこの間取りは、快適でストレスフリーな生活を実珵することができ、日々の生活を豊かに彩るでしょう。
4LDK・2階建
4LDK / 2階建
「自然な調和の暮らし」
4LDKの2階建て住宅は、収納スペースの豊富さとスムーズな整理整頓が可能。庭やバルコニーとリビングが調和し、自然とのつながりを感じながら、ゆったりとしたくつろぎの空間が広がる。暮らしの質を高める間取りが施主の要望を満たし、居心地の良いライフスタイルを実現します。
4LDK・2階建
3LDK / 2階建
家事効率と学びの空間が共存する3LDK設計
この2階建て3LDKの間取りは、施主の要望にぴったりマッチしています。豊富な収納スペースが整理整頓をサポートし、家事が効率的に行える機能性を実現しています。また、子供が集中して勉強できるスペースも計画されており、家族のライフスタイルに寄り添った居心地の良い空間が提供されます。
3LDK・2階建
3LDK / 2階建
自然光満ちる3LDKの上質リビング
この2階建ての3LDKは、プライバシーを確保しつつ自然光がたっぷり差し込む設計となっています。ゆったりとくつろげるリビングスペースが施主の要望にぴったりマッチし、明るい雰囲気が心地よい居住空間を演出します。豊かな自然光と開放感あふれるレイアウトによって、快適でリラックスできるライフスタイルを可能にします。
3LDK・2階建
3LDK / 2階建
自然光満ちる3LDKの家
この2階建ての3LDKは、自然光が豊富に差し込む明るさが魅力です。家事が効率的に行えるよう機能的に配置された間取りは、快適な生活をサポートします。さらに、リビングから庭やバルコニーへのアクセスをスムーズにし、居心地の良さを追求しました。施主の要望を反映し、充実したライフスタイルを実現することができる理想の住空間です。
3LDK・2階建
3LDK / 2階建
自然と調和する家族の暮らし
この2階建て3LDKの間取りは、収納スペースが豊富で整理整頓がしやすく、子供が集中して勉強できる環境を提供します。リビングから続く庭やバルコニーとのつながりは、家族が自然と調和した暮らしを楽しめる空間を演出します。家事や子育てに忙しい施主にとって理想的なライフスタイルを実現する間取りです。
3LDK・2階建
3LDK / 2階建
自然光溢れる広々とした家
この2階建ての3LDKは、自然光がたっぷりと差し込む明るい空間としてデザインされています。ゆったりとしたリビングでくつろぎながら、家事を効率的にこなすことができます。施主の要望を反映し、快適な生活空間を提供することを重視しています。家族が集まり楽しい時間を過ごすための魅力溢れる住まいとなっています。
3LDK・2階建
4LDK / 2階建
自然光満ちる癒しの空間
この2階建て4LDKの間取りは、施主の要望を踏まえ、ゆったりとくつろげるリビングや自然光がたくさん差し込む明るい設計を実現しています。家事も効率的にこなせる機能性を持ちながらも、心地よい空間を提供することで、施主の日々の生活を豊かにし、リラックスできるライフスタイルをサポートします。しっかりとした構造と快適な空間レイアウトが、家族の絆を深める場としての機能も果たします。
4LDK・2階建
3LDK / 2階建
自然光溢れる広々リビングと繋がる3LDKの暮らし
この2階建ての3LDKは、施主の要望を存分に反映しています。明るく開放的なリビングは自然光がたっぷり差し込み、庭やバルコニーとの一体感が心地良い空間です。家族がゆったりとくつろげる居心地の良さと快適さを追求し、ライフスタイルを豊かにする魅力が詰まった間取りとなっています。
3LDK・2階建
3LDK / 2階建
自然光満ちる家族の憩いの場
この2階建ての3LDKは、施主の要望を存分に満たします。明るい設計により、自然光がたっぷりと部屋中に差し込み、心地よい空間を演出します。リビングはゆったりとした広さで、家族のコミュニケーションやくつろぎの場として最適です。また、子供が集中して勉強できるスペースも設けられ、機能的かつ快適なライフスタイルをサポートします。
3LDK・2階建
3LDK / 2階建
自然な暮らしを叶える広々とした3LDKの家
この2階建ての3LDKの間取りは、施主の要望を叶える理想的な住空間として設計されています。リビングはゆったりとした空間でありながら、家事を効率的にこなせるレイアウトとなっており、快適な生活を実現します。開放的な空間で家族や友人との時間を楽しめ、自然との調和を感じる生活が可能です。
3LDK・2階建
3LDK / 2階建
自然光満ちる癒しの空間
提案された3LDKの間取りは、施主の要望を十分に反映しています。広々としたリビングは、ゆったりとくつろげる場所として設計されており、大きな窓からたくさんの自然光を取り込むことで明るい雰囲気を演出しています。また、効率的な家事動線を考慮し、キッチンや洗面所など各部屋の配置が工夫されています。これにより、施主は快適な生活を送るだけでなく、日々の家事をストレスなくこなすことができるでしょう。自然光が心地よく差し込む空間で、家族や友人とのひとときを過ごす新しいライフスタイルが可能になります。
3LDK・2階建
3LDK / 2階建
快適な暮らしを彩る3LDKの住まい
この2階建ての3LDKは、ゆったりとくつろげるリビングと豊富な収納スペースが特長です。施主の要望を踏まえ、広々としたリビングは家族や友人との楽しい時間を演出し、収納スペースの充実は整理整頓をサポートします。暮らしに役立つ機能的なデザインと心地よい空間は、快適な日常を叶えることで、施主の理想のライフスタイルを実現します。
3LDK・2階建
3LDK / 2階建
自然光満ちる、家事も楽々な3LDKの居心地の良い家
この2階建ての3LDKは、施主の要望を満たす理想的な間取りとなっています。広々としたリビングは自然光がたっぷりと差し込み、くつろぎの空間を演出します。明るく開放的な設計は日常生活に活気を与え、家事を効率的に行うことができます。それぞれの部屋は機能的に配置され、居住する方々に快適な生活を提供します。家族団らんや友人を招いての楽しい時間を支える、心地よい空間となっています。
3LDK・2階建
3LDK / 2階建
心地よい暮らしを実現する3LDKの理想的な住空間
この2階建ての3LDKは、家事を効率的に行える間取りとゆったりとしたリビングスペースが特徴です。施主の要望を叶えるため、各部屋は機能的に配置され、豊かな時間を過ごすことができる環境を提供しています。
3LDK・2階建
3LDK / 2階建
自然光溢れる3LDKの家 - リラックスと効率が融合する暮らし
広々としたリビングでゆったりと過ごせるこの3LDKの家は、自然光がたっぷり差し込む開放的な空間。明るく快適な環境が家事を効率的に行いながら、家族の絆を深める場を提供します。施主の要望を反映したこの間取りは、生活空間に豊かな光と心地よいリラックスをもたらし、理想のライフスタイルを実現します。
3LDK・2階建
3LDK / 2階建
リープ
リビングとダイニングをほどよく分け、メリハリのあるくつろぎ空間をご提案。 ゆったりとくつろげる環境を提供します。 2階はバルコニーとホールをゆったり設計し、物干しスペースとして活躍します。 施主のライフスタイルを念頭に置きながら、自然との調和を大切にした住まいが実現しました。
3LDK・2階建
4LDK / 2階建
チャーム
畳コーナーが繋がる、ゆったり広々リビング。 2階には納戸やワークスペースなど、ご家庭様々な用途に利用できるワークスペースだけでなく、主寝室の一角にはメイクスペースも完備。 暮らしの中で自分らしさを表現し、快適に過ごすための環境が整っています。
4LDK・2階建
4LDK / 2階建
ソルテ
大容量の玄関クローク、1・2階それぞれの収納や、ウォークインクローゼットを完備し、収納スペースを豊富に設けています。 窓からの陽や風の通り抜けを計算し、家族の明るい笑顔と会話が弾む、そんな空間をイメージして設計しました。 施主の要望を叶えるだけでなく、暮らしを豊かにするライフスタイルを実現します。
4LDK・2階建
4LDK / 2階建
ゼスト
広々の土間収納が特徴の間取り。 お子様の外遊び道具や、アウトドア用品もたっぷり収納できます。 キッチンすぐ横には畳コーナーを設け、お昼寝スペースや家事空間として等、 使い勝手様々にご活用いただけます。 水廻りをまとめ、家事のしやすさにもこだわった間取り。 効率的な家事を応援します。 2階の各部屋も広々6.5帖以上! 1階はもちろん、2階も収納をしっかり作っていることで、生活のしやすさがグンとアップ。
4LDK・2階建
3LDK / 2階建
ステラ
3つの個室空間とは独立した、ワークスペースを完備。 ゲームルーム、リモートワーク空間、納戸収納…、ご家庭によって様々な使い方ができます。 キッチン横には大容量パントリーを備え、勝手口を設ける事で、ゴミ出しや買い物帰りの荷物の搬入もラクラク。 家事を効率的にこなすことができる機能的な配置となっています。 キッチンとダイニング空間は人気の1列レイアウト。 ダイニングテーブルとキッチンをくっつけて配置することで、食前食後の配膳もスムーズに。 リビングのどこにいても家族とのコミュニケーションが弾む間取りです。
3LDK・2階建
3LDK / 平屋
シュド
ゲストを招きやすい和室を完備した3LDKの平屋間取り。 収納スペースも豊富で整理整頓がしやすい。 特にリビングはゆったりとくつろげる空間で、家族や友人との時間を大切にするライフスタイルを可能にします。
3LDK・平屋
3LDK / 2階建
シャルム
2階建ての3LDK間取りは、ゆったりとくつろげるリビングエリアを中心に配置し、吹抜を設けることで、2階からもたっぷりの陽光をリビングへ取り入れることができます。 2階ホールには、カウンタースペースを設け、書き物やパソコン作業もはかどります。 朝起きて、それぞれの寝室からリビングへ…吹抜から注ぐ朝陽を浴びながら始まる1日は格別ですよ。
3LDK・2階建
4LDK / 2階建
グロース
2階の居室とは別に、客間やお子様スペースなど、多岐の用途で活躍する和室をリビング横に配置。 リビングと続きの空間にすることで、リビング空間をよりゆったり、またキッチンからの視線が届くレイアウトなので、 家族の様子も確認ができる安心設計です。 2階は将来、間仕切り壁を設置して、2室に分ける事ができるよう設計。 家族が増えるまでの間は、大空間の広々寝室として、また趣味室として、環境の変化に合わせた無駄のない使い方ができます。 2階にはインナーバルコニーと広々ホール空間を設ける事で、雨の日の洗濯も安心。 天気のいい日はプールなどを出してちょっとしたアウトドアも楽しむこともできます。
4LDK・2階建