静岡県西部エリア

工務店・新築・一戸建て・注文住宅・リノベ会社を検索できるくふうイエタテ

注文住宅、リフォーム住宅会社を探す

住宅会社 住宅イベント モデルハウス リフォーム・リノベーション 土地・建売 住まいのプロ 動画 家づくりガイド くふうイエタテカウンター
施工対応エリア
愛知県東三河、湖西~島田
電話番号
050-5851-0478
ジャンル
新築 、 リフォーム 、 土地相談
資料請求無料 検討会社に追加する

吹き抜けと大開口を通して広がる、 空と緑と家族の息づかい

お気入り
クリップ
K邸  物件エリア:浜松市中央区  家族構成:夫+妻+長男+長女
Casa(カーサ)【デザイン住宅、子育て、趣味】 「家に求めたのは、いつもみんなの息づかいを感じられること」と奥さま。ご主人が土間で作業をする間、子どもたちはリビングや和室でカードゲームをしたり、けん玉を練習したり、お絵かきをしたり。2人が喧嘩を始めると、ご主人が手を止めて仲裁に入り、いつの間にか笑い声がリビングに響く。そして再び気がつけば、Kさんは薪ストーブの様子を見ている。この空気感は、吹き抜けを通して2階のフリースペースまで巻き込み、全体を一つの空間に仕立てる。いつも近くに家族の気配があるのが心地いい。
Casa(カーサ)【デザイン住宅、子育て、趣味】玄関から続く土間には、アウトドア用品や丸ノコが置かれ、掃き出し窓から庭へ自由に出入りできる。ここは作業場であるのと同時に、家族みんなの憩いの場。1日の終わりには、お風呂を早く出た人からストーブを囲んでアイスリームを食べる。これが家族にとっての一大イベント!
Casa(カーサ)【デザイン住宅、子育て、趣味】家中が子どもたちの遊び場になるK邸。その中でも、特に重要なのがダイニングテーブルだ。子どもたちは2人ともお絵かきが大好きで、作品を作っては、キッチン横の壁に作った鉄板ボードにペタペタ。
Casa(カーサ)【デザイン住宅、子育て、趣味】ご主人作のホワイトボードに、絵やプリント類を掲示
Casa(カーサ)【デザイン住宅、子育て、趣味】長男の楽しみはダイニングテーブルでの卓球。「この家で暮らし始めてから、子どもたちが穏やかになりました。室内でも力いっぱい遊べるし、冬は暖炉の炎がホッとさせるから」と奥さま。吹き抜けの大空間でも、夏場はエアコン1台で快適だそう
Casa(カーサ)【デザイン住宅、子育て、趣味】広めのスペースを確保したキッチンで一緒に料理を。ここはリビングに散らばる物を集約する収納場所でもある。キッチン前の扉付き収納にランドセルや教科書、日用品が収まり、子どもたちの「自分でお片づけ」を促す
Casa(カーサ)【デザイン住宅、子育て、趣味】リビング隣接の畳コーナー。子どもたちがカードゲームをしたり、けん玉の練習をしたりとにぎやかな様子が見えて安心だ。「家に求めたのは、いつもみんなの息づかいを感じられること」と奥さま
Casa(カーサ)【デザイン住宅、子育て、趣味】アイテム別収納スペースのある洗面ルーム。洗濯機の左奥にはファミリークローゼットがある
Casa(カーサ)【デザイン住宅、子育て、趣味】吹き抜けにあるフリースペースには書棚を造作
Casa(カーサ)【デザイン住宅、子育て、趣味】休日の早朝、サーフィンや釣りに一人で出かけるご主人。朝食の時間には帰宅する

新機能!

こちらの施工例は実際に訪問できます

訪問リクエストはこちら
 「家に求めたのは、いつもみんなの息づかいを感じられること」と奥さま。ご主人が土間で作業をする間、子どもたちはリビングや和室でカードゲームをしたり、けん玉を練習したり、お絵かきをしたり。2人が喧嘩を始めると、ご主人が手を止めて仲裁に入り、いつの間にか笑い声がリビングに響く。そして再び気がつけば、Kさんは薪ストーブの様子を見ている。この空気感は、吹き抜けを通して2階のフリースペースまで巻き込み、全体を一つの空間に仕立てる。いつも近くに家族の気配があるのが心地いい。
玄関から続く土間には、アウトドア用品や丸ノコが置かれ、掃き出し窓から庭へ自由に出入りできる。ここは作業場であるのと同時に、家族みんなの憩いの場。1日の終わりには、お風呂を早く出た人からストーブを囲んでアイスリームを食べる。これが家族にとっての一大イベント!
家中が子どもたちの遊び場になるK邸。その中でも、特に重要なのがダイニングテーブルだ。子どもたちは2人ともお絵かきが大好きで、作品を作っては、キッチン横の壁に作った鉄板ボードにペタペタ。
ご主人作のホワイトボードに、絵やプリント類を掲示
長男の楽しみはダイニングテーブルでの卓球。「この家で暮らし始めてから、子どもたちが穏やかになりました。室内でも力いっぱい遊べるし、冬は暖炉の炎がホッとさせるから」と奥さま。吹き抜けの大空間でも、夏場はエアコン1台で快適だそう
広めのスペースを確保したキッチンで一緒に料理を。ここはリビングに散らばる物を集約する収納場所でもある。キッチン前の扉付き収納にランドセルや教科書、日用品が収まり、子どもたちの「自分でお片づけ」を促す
リビング隣接の畳コーナー。子どもたちがカードゲームをしたり、けん玉の練習をしたりとにぎやかな様子が見えて安心だ。「家に求めたのは、いつもみんなの息づかいを感じられること」と奥さま
アイテム別収納スペースのある洗面ルーム。洗濯機の左奥にはファミリークローゼットがある
吹き抜けにあるフリースペースには書棚を造作
休日の早朝、サーフィンや釣りに一人で出かけるご主人。朝食の時間には帰宅する

アウトドアに親しむKさんの趣味は、スケートボード、サーフィン、釣りなど幅広い。庭と室内を行き来して作業したい、同時に家族の存在を感じたいとの思いから、玄関からLDKヘ繋がる土間、大窓と吹き抜けのあるLDKが形になった。無垢パイン材の床、自然塗料で仕上げる壁など、『Casa』独自の素材使いが映える。「この家には薪ストーブが似合いますね」そんな設計士の言葉から、Kさんの趣味に薪割りとDIYも加わることに。ご主人が土間で作業をする傍ら、子どもたちは室内でサッカーやお絵かきを楽しんだり、奥さまを手伝って食事の準備をしたり。ゆとりを持って過ごせるのは、キッチン収納やファミリークローゼットによる計画収納の力が大きい。家全体が1つの空間となり、家族の日常を見守っている。

資料・カタログをもらう無料 来店予約をする
お届けするカタログ・資料の内容
パンフレット パンフレットと共に、資材やカーサ標準仕様など、ファイルに入れてお送りしております。
ファイルは、お家づくりを進めていくときの資料入れとしてもお使いいただけます♪
資料・カタログをもらう
送付資料

住宅性能

  • 耐久性

    耐風等級2取得

  • 耐震性

    耐震等級3取得、許容応力度計算実施

  • 省エネルギー性

    C値(0.5)、UA値(0.46)

  • 通風・換気性

    パッシブデザイン

  • 劣化対策

    劣化対策等級3取得

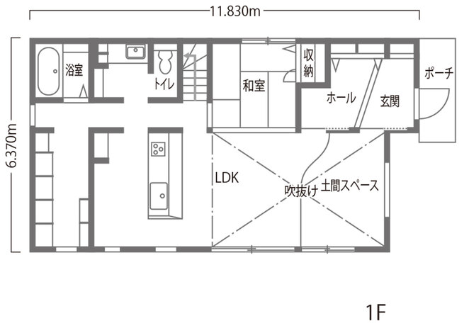
間取り

間取りタイプ
3LDK / 2階建
  • Casa(カーサ) 吹き抜けと大開口を通して広がる、 空と緑と家族の息づかい
  • Casa(カーサ) 吹き抜けと大開口を通して広がる、 空と緑と家族の息づかい
スタッフ写真

スタッフからのコメント

ご夫妻は『Casa』主催の収納セミナーで学んだことを即実践。薪を集める参考に「樹皮ガイド」も買われるなど、暮らしを心から楽しんでくださっています。

代表 渥美 朋久さん

実物を見に行こう!

おうち見学

吹き抜けと大開口を通して広がる、 空と緑と家族の息づかい

Casa(カーサ)のスタッフと一緒に

こちらの施工例を見学会できます。実際に住んでいる方の声が聞ける絶好のチャンスです。

予約フォーム

個人情報の取扱いについて

  • 詳しくはプライバシーポリシーをご覧ください。
  • お申し込み内容につきまして、ご確認のため、くふう住まいからご連絡させていただく場合があります。あらかじめご了承ください。またくふうイエタテからのお得な情報をお送りすることがありますので、あらかじめご了承ください。

予約内容の確認

お名前
メール
電話番号
訪問希望日程
施工会社名
Casa(カーサ)

注意事項

  • ペット同伴不可
  • 見学中の飲食NG
  • 見学NGの部屋あり(寝室や浴室など)
  • 無許可での写真撮影NG

物件情報

本体価格 2500万〜2999万 ※金額は購入当時のものです
設計者名 Casa
施工社名 Casa
敷地面積 203.47㎡ [61.61坪]
延床面積 114.27㎡ [34.60坪] (1階 72.04㎡、2階 42.23㎡)
構造・工法 木造軸組工法
内部仕上げ(床) パイン無垢材
内部仕上げ(内壁) ルナファーザー+自然塗料
内部仕上げ(天井) ルナファーザー+自然塗料
内部仕上げ(断熱材) 木質繊維断熱材(ウッドファイバー)
資料・カタログをもらう無料 来店予約をする
お届けするカタログ・資料の内容
パンフレット パンフレットと共に、資材やカーサ標準仕様など、ファイルに入れてお送りしております。
ファイルは、お家づくりを進めていくときの資料入れとしてもお使いいただけます♪
資料・カタログをもらう
送付資料

その他の新築施工例 ({{max}}件)

Casa(カーサ)

住まう人の健康を思いやり メンテナンスしやすい自然素材の家
  • 本社所在地 静岡県浜松市中央区大久保町6963
  • 施工対応エリア 愛知県東三河、湖西~島田
  • 電話番号 050-5851-0478
  • ジャンル 新築、 リフォーム、 土地相談

お客さまの声

お客さまの写真

大手メーカーの家は全部同じに見え、個性のある工務店を希望。『Casa』さんは性能面、素材面、デザインすべて「ちょうどいいこだわり」があり、共感できました。
一つひとつの空間を妥協せず考え、スタッフの皆さんがその意図を汲み取って形にしてくださいました。「いい家になったね」と、今も毎日夫婦で話しています。

新築したきっかけ

以前の住居はマンションの20階。趣味のアウトドアを楽しんだあとの、片付けが大変でした。そこで人生設計図を書き、建てたい家と使えるコストを徹底的に計算。

ロード中