閉じる

ハウスコネクト

街中の狭小地でゆったりくつろげる、三階建て二世帯住宅

T邸 | 物件エリア:浜松市中央区 | 家族構成:夫+妻+長男+長女+父+母

ハウスコネクト【二世帯住宅、狭小住宅、建築家】
本体価格(総施工費)

2,000~2,499万円

※金額は購入当時のものです

住宅街の一角に建つ、三階建て・二世帯住宅のT邸。驚いたのは、建物に囲まれているとは思えないほど、家中に開放感があふれていることだった。「子どもたちの野球仲間など、友達を気兼ねなく呼びたいから」と、1階で暮らす両親とは玄関を別にしたという。子世帯の玄関から階段を上ると2階LDKにつながり、視線の抜けも計算された採光窓があちこちに。大人2人が余裕を持ってすれ違えるキッチン、子どもたちが勉強するカウンター、さらに大窓越しに広がる屋根付きのテラスまでが一続きになり、光と風が室内に心地よさを運ぶ。「仲間とのホームパーティーが大好き。夏はテラスでBBQを楽しみたいですね」と語るご主人。コンパクトな敷地を最大限活用した、太陽と空を感じられる住まいに家族みんなも大満足だという。また、高い性能と太陽光発電を組み合わせた「ゼロエネ住宅」であることもT邸のポイント。2階のエアコン1台を稼働すれば、3階の寝室や子ども室まで快適に。親世帯ともほどよい距離感を保ちながら、のびのびと心地よく暮らせる住まいが完成した。

シンプルモダン スタイリッシュ インダストリアル

間取り それ以外 / 3階建

敷地面積 100.06m² [30.20坪]

延床面積 137.25m² [41.43坪] (1階45.75m²、2階45.75m²、3階45.75m²)

施工面積 177.05㎡[53.52坪]

屋根 ガルバリウム鋼板

外壁 ガルバリウム鋼板

アカシア無垢フローリング

内壁 クロス

天井 クロス

断熱材 発泡ウレタン吹き付け断熱

バス TOTO(サザナ)

トイレ Panasonic(アラウーノ)

キッチン Panasonic(ラクシーナ)

照明 DAIKO

窓・サッシ LIXIL(サーモス)

設備・施設・その他 太陽光発電5.5kW

施工社名 ハウスコネクト

施工例のご紹介

2・3階は、Tさん夫婦と2人の子どもが暮らす子世帯エリア。2階は広さを重視し、メインのLDKと階段、水回りだけに。テラスへ続く大窓をはじめ、天井近くの高さにも採光窓を配置し、たっぷりの光を取り込んでいる。無垢アカシアの床と黒い柱、シックなアクセントクロスがモダンな印象を与えてくれる

2・3階は、Tさん夫婦と2人の子どもが暮らす子世帯エリア。2階は広さを重視し、メインのLDKと階段、水回りだけに。テラスへ続く大窓をはじめ、天井近くの高さにも採光窓を配置し、たっぷりの光を取り込んでいる。無垢アカシアの床と黒い柱、シックなアクセントクロスがモダンな印象を与えてくれる

2階リビングの大窓越しにつながるテラスは屋根付き。雨の日も安心して洗濯物が干せると奥さまも大満足。周囲の家からの視線も気にならないため、ホームパーティーも心ゆくまで楽しめるという

2階リビングの大窓越しにつながるテラスは屋根付き。雨の日も安心して洗濯物が干せると奥さまも大満足。周囲の家からの視線も気にならないため、ホームパーティーも心ゆくまで楽しめるという

キッチン横にはスタディカウンターを造作。「自室ではなかなか勉強しないので(笑)。ここなら料理をしながら見守ることができます」と奥さま

キッチン横にはスタディカウンターを造作。「自室ではなかなか勉強しないので(笑)。ここなら料理をしながら見守ることができます」と奥さま

階段はスケルトン形式にして、こちらも大きな窓を設けることで光の動線と開放感を確保。1階の親世帯とも階段でつながっているため、お互いの息遣いがほどよく感じられる

階段はスケルトン形式にして、こちらも大きな窓を設けることで光の動線と開放感を確保。1階の親世帯とも階段でつながっているため、お互いの息遣いがほどよく感じられる

リビングは、配線や収納物を上手に隠し、生活感を感じさせない空間に仕上げている。大きな窓から太陽光が差し込み、冬の昼間は暖房がいらないほど暖かで快適

リビングは、配線や収納物を上手に隠し、生活感を感じさせない空間に仕上げている。大きな窓から太陽光が差し込み、冬の昼間は暖房がいらないほど暖かで快適

キッチンはゆとりたっぷりの広々設計。「ホームパーティーでは、私がここで動いていても、お客さんが気にせずに飲み物を注げるほどゆったりとした広さがあります」と奥さま。小学生の娘さんと一緒にキッチンに立つのも楽しみなのだという。食器洗い担当のご主人と並んでのキッチンワークももちろん余裕

キッチンはゆとりたっぷりの広々設計。「ホームパーティーでは、私がここで動いていても、お客さんが気にせずに飲み物を注げるほどゆったりとした広さがあります」と奥さま。小学生の娘さんと一緒にキッチンに立つのも楽しみなのだという。食器洗い担当のご主人と並んでのキッチンワークももちろん余裕

以前の家では洗面台渋滞が頻発。そこで、鏡が2枚並んだワイドな洗面台を導入した。ほかの家族が顔を洗っている最中も、奥さまは横でゆっくり化粧ができるようになったという

以前の家では洗面台渋滞が頻発。そこで、鏡が2枚並んだワイドな洗面台を導入した。ほかの家族が顔を洗っている最中も、奥さまは横でゆっくり化粧ができるようになったという

ガルバリウム鋼板と木目をバランスよく組み合わせた外観。車2台が収まる駐車場の真上にテラスを設計し、コンパクトにまとめている

ガルバリウム鋼板と木目をバランスよく組み合わせた外観。車2台が収まる駐車場の真上にテラスを設計し、コンパクトにまとめている

住宅性能

耐久性 耐風等級2取得

耐震性 耐震等級3取得

防犯性 防犯ガラス

間取り

それ以外 / 3階建

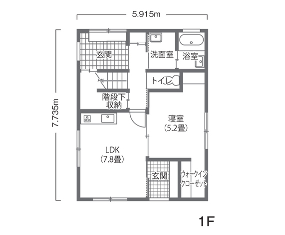
暮らしやすい両親用住居

暮らしやすい両親用住居

1階は道路に面した両親用玄関と、奥に子世帯用玄関の2つを用意。両親が暮らすスペースはコンパクトながらキッチンがついたLDKと寝室が一続きで、移動が少なく楽に暮らせる。寝室からトイレへのアクセスもよく、2階とのつながりもスムーズだ。また、子世帯の玄関に入ると、親世帯が使う浴室へも直行できるレイアウトも便利。「子どもたちが野球で汗だくで帰って来たときも、そのまますぐシャワーを浴びられます」とご主人。

開放的なLDKを重視

開放的なLDKを重視

2階は「いかにリビングを広く取るか」を目的に設計。水回りを脇に寄せて、できる限りスペースを確保しながら、視線の抜けも計算した採光窓を随所に配置した。キッチンの広さが特徴的で、洗濯機のある脱衣室や衣類を干すテラスへのアクセスもスムーズ。「家事が苦にならない」と奥さまも笑顔に。

寝室と子ども室も暖かい

寝室と子ども室も暖かい

3階には夫婦の寝室と、2つの子ども室を用意。ドアを開け放てば2階で稼働するエアコンの熱が循環するため、冬でもLDKの1台だけで快適に過ごせるほどあたたかい。

お客様の声

お客様の声

Tさま

夫+妻+長男+長女+父+母

実際に建ててみた感想

知人から「ハウスコネクトさんなら設計力が高く、無駄がないスッキリしたデザインを叶えてくれるよ」と教えてもらって施工例を見学。シンプルモダン、和風、カフェ風まで幅広い家を手がけていて、「ここなら自分たちの要望を形にしてもらえそう」と感じたんです。私たちの願いは、約30坪の土地に2台分の駐車場を確保して、1階は親世帯、2〜3階は子世帯を。さらに、庭代わりのテラスも欲しいという欲張りなもの。それに対し、一級建築士の村山さんは、希望をすべて盛り込んだ、ゆとりある設計を提案してくれました。暮らし心地も抜群です!

家を建てたきっかけ

築40年ほどの実家に両親と私たち夫婦、2人の子どもの計6人で暮らしていました。建物が老朽化したこと、子ども部屋が欲しいことなどを理由に建て替えを検討。敷地面積約30坪の中で、どれだけ広く暮らせるかが課題でした。

ハウスコネクトからのコメント

代表取締役・一級建築士 村山道隆さん

代表取締役・一級建築士 村山道隆さん

ご家族の希望をベースに、広く、明るく過ごせるように設計しました。吹付断熱による断熱性、気密性も高く、ゼロエネルギー住宅として補助金を使用した住まいです。どんな土地環境でも「心地よく過ごす」ヒントがあるはず。それを見つけ出し、最大限に生かした家づくりをしています。

この施工例を見に行く

こちらの施工例を見学できます
実際に住んでいる方の声が聞ける絶好のチャンスです

この施工例を見に行く

予約内容の確認

お名前
メール
電話番号
訪問希望日程
施工会社名
ハウスコネクト

注意事項

  • ペット同伴不可
  • 見学中の飲食NG
  • 見学NGの部屋あり(寝室や浴室など)
  • 無許可での写真撮影NG

注意事項を確認のうえ

ハウスコネクトの他の施工例

会社概要

会社名
ハウスコネクト
施工対応エリア
湖西~掛川
参考坪単価
65万円〜72万円
会社所在地
静岡県浜松市中央区萩丘1丁目10-5
電話番号
050-5268-8285
このページを共有する
LINEで送る

閲覧履歴

閲覧した工務店はまだありません

来場キャンペーン

AmazonGiftCard
住宅イベント
住宅会社
モデルハウス

いずれかに来場・来店すると

最大5,000円もらえます

プレゼント方法
STEP1 1回の来場・来店で1,000
STEP2 2回の来場・来店で2,000
STEP3 3回の来場・来店で5,000

くふうイエタテ会員登録(無料)のうえ、Webイエタテでご予約し、住宅イベントやモデルハウス、住宅会社に来場・来店するとAmazonギフト券最大5,000円分(Eメールタイプ)を 先着200名様にプレゼント!※2026年2月28日までのご来場が対象となります

応募条件

このキャンペーンは注文住宅の購入やリノベーションの施工を検討している方を対象にしております。対象外の方のご応募はご遠慮ください。当社が不正な応募と判断した場合、 住宅会社への迷惑となる行為が確認された場合にはご応募が無効となり、以降のキャンペーン参加をお断りさせていただく場合がございます。あらかじめご了承ください。

本キャンペーンはWEBくふうイエタテ会員(無料)限定のキャンペーンとなります。必ずログインしてからご予約ください。非会員や電話予約につきましては対象外となります。

しずおかオンラインおよび、くふう住まい/くふうイエタテ主催のキャンペーンに過去10回以上ご参加されている方は応募対象外とさせていただきます。

1世帯につき1IDのみが応募対象となります。また、参加回数は同一IDからの参加についてのみカウントされます。 同一世帯の方が複数IDでご予約された場合も、応募条件を満たした1IDのみが応募有効となり、それ以外のIDでのご予約・ご参加については対象外となります。 なお、同一世帯の複数のIDから予約されたイベント・モデルハウス・住宅会社につきましては合算はできかねますのでご注意ください。4回目以降の予約にはプレゼントはつきません。

ご家族複数名での見学や同じメールアドレスの利用、同じご住所にお住まい、もしくは同居をご予定している場合、本企画では、それぞれを同一世帯1組様とみなします。 また、その他入力いただいた情報により、編集部が同一世帯とみなす場合がございます。

予約後、キャンセルされた場合は無効となります。イベントへの来場が確認できなかった場合や、スタッフから十分な説明を受けず途中退場した場合など、 イベントへご参加いただいたとの判断ができかねる場合、 利用者アンケートの回答が期限内に無い場合も、無効とさせていただきます。

ギフト券はキャンペーン終了後おおよそ1ヶ月以内に順次発送の予定です。送付状況など、発送に関する個別のお問合せにつきましてはお答えできかねますので、 あらかじめご了承ください。また、ギフト券はマイページのプロフィール欄にご登録されているメールアドレスに届きます。 入力されたメールアドレスが不明な場合や、何らかの理由で送付不可能である場合、 送付が取り消され、その時点で応募自体が無効となりますのでご注意ください。

メール送付後におきまして、何らかの理由でメールが受信されなかった場合、また、受信後のメール削除や紛失などがあった場合は、 いかなる理由によりましても弊社では責任を負いかねます。ご了承ください。

記載の【キャンペーン対象期間】とは【予約のお申し込みをされた日】を指します。対象期間外に予約のお申し込みをされた場合には、キャンペーン対象外となります。 また、ご来場の有効期間は2026年3月7日までとなりますので、2026年3月8日以降に開催のイベントやモデルハウス見学への予約もキャンペーン対象外となりますので、ご注意ください。

注意事項

※本企画は、日本国内在住で契約者本人が居住するための住宅の購入を検討している一般の方を対象としております。また、契約者が法人の場合は対象外となります。

※[不動産業における景品類の提供の制限に関する公正競争規約]により、各住宅会社で本企画とは別に行っているプレゼント企画の賞品と本キャンペーンの賞品の両方は受け取れない場合がございます。 詳しくはくふうイエタテ編集部にお問合せください。

※携帯電話(スマートフォン以外)・PHSからの応募はできません。またスマートフォンの場合も、一部対応できない機種があります。 応募可能なインターネット接続環境や端末は、お客さまご自身でご用意ください。また、通信料はお客さま負担となります。

※ご家族複数名での見学や同じメールアドレスの利用、同じご住所にお住まい、もしくは同居を予定している場合、本企画では、それぞれを同一世帯1組様とみなします。 なお、入力いただいた情報により、編集部が同一世帯とみなす場合がございます。また、本人以外の方のメールアドレスでの応募、代行での参加手続きは無効といたします。

※未成年もしくは学生の方のみでのモデルハウス見学もしくはイベントへの参加は、キャンペーンの対象外となりますのでご注意ください。

※本企画は、当社の都合により、キャンペーン期間に関係なく、事情によりキャンペーンを中止する場合がございます。 あらかじめご了承ください。当社は、本企画の変更・終了等により生じたいかなる損害等についても、一切責任を負うものではありません。

※ご入力いただきましたメールアドレスに不備がある場合、当選を無効とさせていただきます。