静岡県西部エリア

工務店・新築・一戸建て・注文住宅・リノベ会社を検索できるくふうイエタテ

注文住宅、リフォーム住宅会社を探す

住宅会社 住宅イベント モデルハウス リフォーム・リノベーション 土地・建売 住まいのプロ 動画 家づくりガイド くふうイエタテカウンター
施工対応エリア
東三河、湖西市、浜松市西部
電話番号
050-5851-0628
ジャンル
新築 、 リフォーム
資料請求無料 検討会社に追加する

風景が暮らしに彩りを添える、光あふれる家

お気入り
クリップ
T邸  物件エリア:豊田市  家族構成:夫+妻+長女
神谷綜合建設 カミヤの家【子育て、省エネ、平屋】勾配天井と隣接するウッドデッキが開放感を演出するダイニング。リビングと位置をずらすことで奥行きが生まれ、畳数以上の広がりを感じられる。床はあえて節の多いナラ材を選び、コストダウンに成功
神谷綜合建設 カミヤの家【子育て、省エネ、平屋】ネスターマーティン製の薪ストーブが目を引くリビング。冬場はこれ1台で家中ポカポカ。隣家のある南面は高窓だけとし、東の大きな窓が室内に明かりを届ける
神谷綜合建設 カミヤの家【子育て、省エネ、平屋】ダイニングやリビング、和室も一望でき、家事をしながら窓の外の美しい景色を感じることができるキッチン
神谷綜合建設 カミヤの家【子育て、省エネ、平屋】「山から昇る朝日がとってもキレイで」と奥さま。友だちを招いたBBQやアウトドアリビングとしても活躍
神谷綜合建設 カミヤの家【子育て、省エネ、平屋】子ども部屋は将来2部屋に分けられるよう、扉や照明などをそれぞれ用意
神谷綜合建設 カミヤの家【子育て、省エネ、平屋】廊下の天井高はなんと4.1m。高窓から光が降り注ぎ、北側であっても十分明るい。ランドリールームを併設し、モザイクタイルをあしらった洗面台がかわいい
神谷綜合建設 カミヤの家【子育て、省エネ、平屋】2.6畳の土間収納がある玄関ホール。格子の向こうには洗面があり、帰宅後もすぐに手洗いができる
神谷綜合建設 カミヤの家【子育て、省エネ、平屋】玄関ホールに設けたゲスト用トイレ。奥さまが一目ぼれしたペンダントライトと、木目調のアクセントウォールがおしゃれ
神谷綜合建設 カミヤの家【子育て、省エネ、平屋】琉球畳に、和紙製のブラインドを採用したモダンな和室
神谷綜合建設 カミヤの家【子育て、省エネ、平屋】ウッドデッキ周辺を白の塗り壁にすることで、反射光が生まれ、より多くの光が屋内に届く。デッキをステップ状にし、外からのアクセスもスムーズ
勾配天井と隣接するウッドデッキが開放感を演出するダイニング。リビングと位置をずらすことで奥行きが生まれ、畳数以上の広がりを感じられる。床はあえて節の多いナラ材を選び、コストダウンに成功
ネスターマーティン製の薪ストーブが目を引くリビング。冬場はこれ1台で家中ポカポカ。隣家のある南面は高窓だけとし、東の大きな窓が室内に明かりを届ける
ダイニングやリビング、和室も一望でき、家事をしながら窓の外の美しい景色を感じることができるキッチン
「山から昇る朝日がとってもキレイで」と奥さま。友だちを招いたBBQやアウトドアリビングとしても活躍
子ども部屋は将来2部屋に分けられるよう、扉や照明などをそれぞれ用意
廊下の天井高はなんと4.1m。高窓から光が降り注ぎ、北側であっても十分明るい。ランドリールームを併設し、モザイクタイルをあしらった洗面台がかわいい
2.6畳の土間収納がある玄関ホール。格子の向こうには洗面があり、帰宅後もすぐに手洗いができる
玄関ホールに設けたゲスト用トイレ。奥さまが一目ぼれしたペンダントライトと、木目調のアクセントウォールがおしゃれ
琉球畳に、和紙製のブラインドを採用したモダンな和室
ウッドデッキ周辺を白の塗り壁にすることで、反射光が生まれ、より多くの光が屋内に届く。デッキをステップ状にし、外からのアクセスもスムーズ

当初は別の会社と話が進んでいたT邸。もう1社、意見を聞きたく訪れたのが『カミヤの家』だった。「私たちの要望を理解し、それまで全く想像していなかった提案をしてくれました。周囲に広がる風景を生かしたアイデアもとても素敵で依頼することを決めました」とほほ笑む夫妻。南東角にウッドデッキを設け、最大で4・1mある勾配天井が家の奥まで光を届け、どこにいても気持ちいい空間が誕生した。住宅性能が高く、初夏なら窓を閉じていても家の中は木陰のように涼しく快適。「家づくりはネットの情報に迷うことも多かったですが、カミヤさんはプロとして良い点も悪い点もきちんとした説明をしてくれて頼りになりました」とご主人。光に満ちた家に友人が集まり、笑い声が響いている。

資料・カタログをもらう無料 来店予約をする
送付内容: 会社パンフレット 施工例集 その他

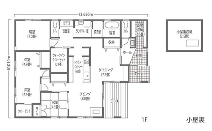
間取り

間取りタイプ
4LDK / 平屋
  • 1階
    神谷綜合建設 カミヤの家 風景が暮らしに彩りを添える、光あふれる家 1階

    南東角にウッドデッキを設けることで光が家の奥まで届く。キッチンを中心に回遊でき、短い家事動線が共働き子育て夫妻をサポート。小屋裏は寝室の上に配置。

スタッフ写真

スタッフからのコメント

敷地を見た瞬間、山の稜線、広がる畑、その先に走る電車の風景を生かすプランが浮かびました。家事動線や採光など、お施主さまの要望に専門的な視点から提案し、明るく気持ちのいい家が完成しました。

営業部長 中川 信さん

物件情報

本体価格

建築本体工事費3,450万円

※金額は購入当時のものです
設計者名 神谷綜合建設 カミヤの家
施工社名 神谷綜合建設 カミヤの家
敷地面積 388.47㎡ [117.27坪]
延床面積 116.77㎡ [35.25坪]
施工面積 138.13㎡ [41.70坪]
構造・工法 木造軸組工法
竣工 2022年11月
施工期間 6か月
外部仕上げ(屋根) ガルバリウム鋼板
外部仕上げ(外壁) ガルバリウム鋼板、塗り壁(ジョリパット)
内部仕上げ(床) ナラ
内部仕上げ(内壁) クロス
内部仕上げ(天井) クロス
内部仕上げ(断熱材) 発泡ウレタン
内部仕上げ(柱) ヒノキ
使用メーカー(バス) TOTO
使用メーカー(トイレ) TOTO
使用メーカー(キッチン) タカラスタンダード
使用メーカー(照明) オーデリック
使用メーカー(窓・サッシ) YKK
資料・カタログをもらう無料 来店予約をする
送付内容: 会社パンフレット 施工例集 その他

その他の新築施工例 ({{max}}件)

神谷綜合建設 カミヤの家

光・風・自然素材・カミヤの家
  • 本社所在地 愛知県豊橋市天伯町豊216-2
  • 施工対応エリア 東三河、湖西市、浜松市西部
  • 電話番号 050-5851-0628
  • ジャンル 新築、 リフォーム

お客さまの声

お客さまの写真

イエタテで気になった家がすべて『カミヤの家』でした。中川さんの人柄にも引かれ、お願いすることに。必要な場所に収納があるので、ものが片づくし、使いたいときにサッと取り出せ、ストレスがなく快適。

新築したきっかけ

子どもが生まれ荷物が増え、アパートの収納では足りなくなって。土地のめどが立ったのも後押しに。

ロード中