静岡県西部エリア
他のエリア
工務店・新築・一戸建て・注文住宅・リノベ会社を検索できるくふうイエタテ
3LDK / 平屋
施工事例あり
家づくりの主役は愛犬と愛猫!ペットと楽しく快適に暮らす平屋
ペットが大好きなご夫妻は、どの部屋もペットの過ごしやすさを最優先してプランや素材を検討されました。また、リモートワークがメインの奥さまのため、リビングの一角に専用のワークスペースを設けたこともこだわりの1つです。
3LDK・平屋 (ワークスペース、猫ちゃん部屋有り)
延床面積:102.5m² [31.0坪]
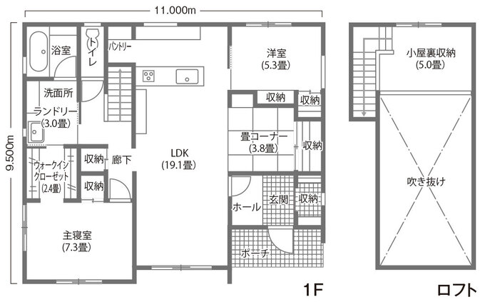
3LDK / 2階建
好みのデザインに囲まれて過ごす、心地良さいっぱいの幸福空間
家づくりは、ご家族の人生観や生活スタイル、好みに「じっくり耳を傾ける」ことから始まります。どんな風に暮らしたいか、家族と一緒にどうくつろぎたいかが大切。そのイメージをべーすにしながら、便利な家事動線、自然エネルギーの活用を盛り込み、住まいのプロとして心地良い住環境をご提案します。
3LDK・2階建 (ロフト)
延床面積:105.25m² [31.83坪]
2LDK / 平屋
施工事例あり
無駄を省いたコンパクトな間取りで、広々LDKと家事ラク動線が実現
なるべく廊下を設けずに坪数を抑えながら、勾配天井によって広がりのある空間をデザインしました。家事ラクな動線など、暮らしやすさを重視した提案も随所に活かされています。
2LDK・平屋 (畳コーナー、小屋裏収納)
延床面積:95.75m² [28.96坪]
3LDK / 2階建
施工事例あり
駅近の市街地でも、家族がのびのび暮らせる家
共働きのご夫婦なので、室内干しのスペースを設けたり、家族のコミュニケーションが取りやすいように吹抜けを設けたりといった工夫を凝らしました。
3LDK・2階建 (シューズクローク、ウォークインクローゼット)
延床面積:113.02m² [34.18坪]
2LDK / 平屋
施工事例あり
高齢でも暮らしやすい「思いやり設計」の平屋
親子お二人で住む平屋を希望されたY様。 足がお悪いお母様の暮らしをシミュレーションしながら、移動の負担の軽減と転倒防止を第一に考え、バリアフリーや座って入れるバスルーム、手すりの設置など、細部まで配慮しました。
2LDK・平屋 (和室、小屋裏収納)
延床面積:97.75m² [29.56坪]
3LDK / 2階建
【アイフルホームプランコンテスト第3位】30代の共働き夫婦の考える「収納上手な家」アイフルホームプランコンテスト第3位プラン
玄関を広くすることで、自転車やベビーカーを置いても楽々と靴を脱ぐことができます。 キッチンを中心にぐるぐる回れる回遊動線で家事ラクな間取りに。 1階にファミリークローゼットを設けることで、階段の昇り降りの回数を減らすことができ、朝の身支度も時短できます。
3LDK・2階建 (1階に広々ファミリークローゼット)
延床面積:106.2m² [32.12坪]
3LDK / 2階建
【アイフルホームプランコンテスト優勝プラン】20代の共働き夫婦の考える「家事ラクな家」
玄関ホールには、帰宅してすぐ手洗いうがいができる、「ただいま手洗い」。キッチンからはLDKのお子様の様子がわかる「見守り動線」。水廻りを一ヶ所に集めることで時短できる家事ラクな間取りになりました。1階に寝室と大容量のクローゼットを設けたことで、お子様が小さいうちは1階のみで生活ができます。
3LDK・2階建 (ファミリークローゼット、テレワークスペース)
延床面積:98.54m² [29.8坪]