静岡県中部エリア
他のエリア
工務店・新築・一戸建て・注文住宅・リノベ会社を検索できるくふうイエタテ
4LDK / 2階建
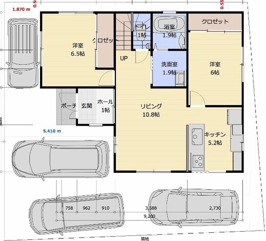
プラン46-敷地25坪 間口5.4m(3間)木造2階建てロフト10帖 延床面積99㎡
25坪の土地に、建ててOKな大きさ(建ぺい率)は60%。25坪×0.6=15坪 JUST! 間取りは4LDK+屋根裏収納庫10帖。 工夫としては階段で2階に上がり切ったら2~3歩で5枚のドア、どれでも触れる近さ。 そう!廊下が無いのです♪ 上り切りホール中心に【寝室1】・【子供室3】・【トイレ1】へと無駄なく設計されています。
4LDK・2階建
延床面積:99m² [29.94坪]
4LDK / 3階建
プラン45-敷地21坪 間口4.5m(2.5間)木造3階建てバイクガレージ 延床面積112㎡
土地は21坪ですが完成すると大きく見える3階建てです。 21坪×0.6(建ぺい率)=12.6坪の大きさで建てられます。 今回は約11坪×3階ですから 床面積は33坪。 1階は駐輪スペースとトイレ・洗面・シャワー室。寝室まで確保できてます。 2階がメインのキッチン・ダイニング・お風呂・洗面・トイレ。 3階に子供部屋2つと、巨大収納で11帖の洋服部屋。 左側面は敷地の形状に合わせてポコンと飛び出させて部屋の広さを確保してます♪ そのポコンを利用して、ダイニング横に家事スペースを作ります。
4LDK・3階建
延床面積:112m² [33.87坪]
4LDK / 3階建
狭小プラン44-間口10.9m(6間)木造3階建てビルトインガレージ 延床面積159㎡(48坪)
1階はどうしても暗くなるので、玄関とシューズクロークと寝室8帖とトイレのみ。 2階が22帖のLDKと洗面・お風呂・トイレ。 バルコニーも南側に広くとりましたので洗濯物も干しやすいです。 3階には、6帖のこども部屋3室確保しました。
4LDK・3階建
延床面積:159m² [48.09坪]
3階建
プラン43-間口7.2m(4間)木造3階建てビルトインガレージ 延床面積163㎡(49.3坪)
建坪16.3坪で総3階建て、ビルトインガレージ、さらに駐車2台。 1階はビルトインガレージと、6帖・8帖の予備室。 倉庫としての使い道になりそうです・・・がっ、 将来御両親が階段がきつい時代が来たならば その時はキッチンやトイレを作って1階で暮らす事も視野にいれてあります。 2階は御両親の1LDK。 リビングに4.5帖の畳コーナーも作りましたから コタツを出しても良いし、来客の時は泊まって頂けます。 3階のLDK21帖。 広いですが無駄な通路や空間などは作らず動線重視しました♪
それ以外・3階建
延床面積:163m² [49.3坪]
4LDK / 2階建
プラン42-間口9.1m(5間)木造2階建て4LDK 延床面積107㎡(32.3坪)
間取りは4LDK。各部屋にたっぷり収納を造りました。 書斎あり、お客様が泊まれる畳スペース完備で バルコニーも広い。 御要望がすべて詰め込んだ設計ができました。 屋根裏に13帖の広い収納があれば・・・ 扇風機やファンヒーター、雛人形、季節毎の衣類や旅行カバンもゆったり入ります。 その分1,2階の収納は毎日使うものだけ入れるので暮らしやすいです。
4LDK・2階建
延床面積:107m² [32.36坪]
3LDK / 2階建
狭小プラン41-間口5.4m(3間) 2階建て 延床面積59㎡(18.0坪)
【HAPPY CUBIC】からの提案です。 究極のコンパクト&シンプルデザインで、1階はキッチン・リビング・トイレ・洗面・お風呂で 2階に寝室5帖と子供部屋(3帖2室)。 子ども部屋3帖は狭~~っ! って言いますが 立体的に見て下さいよ~。 机の上に1.7帖のベットルームがあるので、実質は4.7帖の広さで使えます。
3LDK・2階建
延床面積:59m² [17.84坪]
2LDK / 3階建
プラン40-間口4.0m(2.2間) 木造3階建て 延床面積159㎡(48.0坪)
土地の幅5mに 建物4m。 3階建ての住宅です。 今回のプランでは、土足のまま奥の階段を上がった2階に玄関があります。 1階は駐車スペース2台。 縦列の置き方になってしまいますが、 車の横は1m以上の通路があるので、奥の方へ駐輪できます。
2LDK・3階建
延床面積:159m² [48.09坪]
4LDK / 2階建
プラン39-間口7.5m(4.1間) 2階建て 延床面積130㎡(39.3坪)
1階に21帖のLDKと客間6帖。2階は寝室と子供部屋を確保。 4人で暮らす場合、2階にもトイレと洗面はあると便利ですね。 土間タイルが4帖でホールのフローリングが2帖。 合計6帖もの空間! 但し4帖の土間でも半分は家族用、半分を来客用にわけます。 階段は、家のド真ん中。 階段中心の生活するので、その周りを回遊しながら和室、玄関、洗面へと 最短距離の動線で暮らせます。
4LDK・2階建
延床面積:130m² [39.32坪]
2LDK / 2階建
プラン38-敷地16坪ロフト7.6帖 間口4.0m(2.2間) 2階建て 延床面積57㎡
土地16坪(幅4.8m×奥行10.8m=52㎡)、 ここに9.6坪の2階建て+屋根裏ロフトのある家を造ります。 駐車スペース1台と、自転車3台を玄関前に。 1階寝室の奥に、別に4.3帖のベット&書斎室をつくりました。 収納は、7帖のロフトに集結しましょう。
2LDK・2階建
延床面積:57m² [17.24坪]
2LDK / 2階建
プラン37-間口10m(5.5間) 鉄骨2階建てビルトインガレージ 延床面積146㎡(44.2坪)
鉄骨で建てる2階建て! ビルトインガレージが広いので車や自転車が濡れない生活。 今回はお客様の御要望で2階にLDKや寝室、子ども部屋を集約させる生活スタイルが希望。 キッチンスペースが5帖で、リビングダイニングが18帖。合わせて23帖。 寝室10帖、子供室6帖とバルコニーも広いです。
2LDK・2階建
延床面積:146m² [44.16坪]
3LDK / 2階建
プラン36-間口10m(5.5間) 2階建て 延床面積81㎡(24.5坪)
このプランでは1階を10坪。LDKや水まわり設備を配置して 2階を24坪と広く確保。 寝室1室 子供部屋2部屋確保です。 部屋は1階にLDKや水まわり設備を配置して、2階に寝室1室 子供部屋2部屋の3LDK。 屋根裏のデッドスペースを利用して収納力重視もできますし、 天井は低いですが、子供さんは秘密基地的ベットとして使っても楽しいかもしれません。
3LDK・2階建
延床面積:81m² [24.5坪]
5LDK / 2階建
プラン35-間口7.7m(4.2間) 2階建て太陽光発電 延床面積145㎡(43.8坪)
2階を90センチ跳ねだして造り、その下を自転車やバイク置き場つくりました。 階段を建物中央に作った訳は2階に上がると分かります。 上がりきった瞬間に見えるもの、部屋のドア4つ・トイレドア・洗面。 無駄な廊下部分を最小限にしています。
5LDK・2階建
延床面積:145m² [43.86坪]
2LDK / 2階建
プラン34-間口3.0m(1.6間) 2階建て 延床面積60㎡(18.1坪)
幅3mの家です。2階建て+屋根裏の収納庫8帖。 1階は寝室と浴室・洗面。2階にLDKと洋室。 8帖のロフトがあるので、収納スペースはバッチリです。
2LDK・2階建
延床面積:60m² [18.15坪]
4LDK / 2階建
プラン33-間口9.1m(5.0間) 2階建て 延床面積103㎡(31.1坪)
玄関横に自転車バイク置き場を確保。 南の庭は3.5m程の奥行きがあり比較的明るくなるので、 キッチン・ダイニング・リビング全て南へ♪ 2階の子ども部屋も日が入ります。 2階バルコニーも広めにしておけばバーベキューや子供さんのビニールプールも可能です。
4LDK・2階建
延床面積:103m² [31.15坪]
3LDK / 2階建
プラン32-間口9.1m(5.0間) 2階建て 延床面積135㎡(40.8坪)
2階床を繰り抜いて吹き抜け10㎡(6帖分)作ったので、建築基準法的な延べ床面積は125㎡(37坪)の家です。 玄関ホールを広くし、シューズクロークだけでなく、洗面室やリビングにも収納を充実させました。 2階の階段ホールにカウンターを付けたので、読書やパソコンができる書斎と同じ使い方も可能です。
3LDK・2階建
延床面積:135m² [40.83坪]
7LDK / 3階建
プラン31-間口4.8m(2.6間) 3階建て二世帯住宅 延床面積172㎡(52.0坪)
四世代同居のプランです。 1階は玄関入ると、御両親それぞれの部屋とおばあちゃんの部屋。 もちろんトイレや洗面所も確保してあります。 2階はみんなが集うLDKや水まわり設備と夫婦寝室。 3階が子供部屋3室。 今回の居室7部屋は5.5~6帖平均で統一。 LDKは20帖。大人数が集合しても安心です。
7LDK・3階建
延床面積:172m² [52.03坪]
2LDK / 2階建
プラン30-敷地27坪 間口4.1m(2.2間)2階建2LDK 延床面積73㎡(22.2坪)
今回予算の関係で20坪以下にする計画でしたが・・・ ご要望をカタチにすると1、2階合わせて22坪(><;) 土地は幅5m×奥行18.5mの細長い土地。 一人住まい、予備室を含めて2LDKで建築します。 1階にダイニングキッチン+居間・お風呂・洗面・トイレと広縁。 洗濯物は日が当たる広縁で干すので、外に出なくて済みます。
2LDK・2階建
延床面積:73m² [22.08坪]
4LDK / 3階建
プラン29-間口4.9m(2.7間)3階建ビルトインガレージ 延床面積257㎡(77.8坪)
街中のビル群の隙間に計画のビルトインガレージ3階建てです。 駐車スペースはMAX4台まで可能。その奥が玄関で、収納庫も広く設計されています。 2階のLDKは40帖の広さがありますから10人、15人集まっても大丈夫♪ 【EV】の表示はホームエレベーターです。 3階は3室+書斎で、屋根裏の収納庫は18帖(天井は1.4m)確保しました。
4LDK・3階建
延床面積:257m² [77.74坪]
3LDK / 3階建
プラン28-間口7.2m(4.0間)3階建店舗併用 延床面積144㎡(43.5坪)
店舗併用住宅プランです。 1階で飲食業を計画、2階と3階は3LDKの間取りで住まいます。 2階にキッチン・ダイニング・リビング・お風呂・洗面・洗濯・トイレ・物干しバルコニーと 主な生活動線を全て集約できました。 キッチンに立った時の正面がテレビですから、家事をしながらでも団欒に加われます。 3階は寝室と子ども部屋2つ取れました。
3LDK・3階建
延床面積:144m² [43.56坪]
2LDK / 2階建
プラン27-敷地15坪 間口3.0m(1.6間) 2階建ビルトインガレージ 延床面積98㎡(29.6坪)
幅3mのマイホーム。 奥行は16mと、超極細敷地。狭小地というよりも変形地です。 駐車スペースは縦に2台。 後ろの1台分はビルトインガレージになっています。 1階に17.3帖のリビングダイニングを配置しますが、問題は日が差し込むかどうか? 階段とリビングの部分だけ上から日が差しこみます。 その部分を階段もセットで吹き抜けにして明るく演出。 2階は洋間2室と洗面・脱衣・洗濯・お風呂・トイレとバルコニーがあります。
2LDK・2階建
延床面積:98m² [29.64坪]
4LDK / 3階建
プラン26-3階建店舗併用 間口5.9m(3.2間) 延床面積173㎡(52.3坪)
1階が事務所、2~3階を住まいにした案です。 事務所併用とは言え、無機質なビルっぽい外観にしたくないので 2階バルコニーに丸みををつけて優しいフォルムに工夫。 1階ミーティング室15帖、その奥の事務室14帖。トイレ・給湯・洗面も完備。 2階へは住宅専用の玄関があって家族4人が暮らせるスペース。 LDK16帖にプラスして畳コーナー4.5帖♪
4LDK・3階建
延床面積:173m² [52.33坪]
3階建
プラン25-敷地11.7坪 間口4.4m(2.4間)3階建収益物件 延床面積92㎡(27.9坪)
土地39㎡は坪数に直すと11.7坪の極小敷地。 収益物件として1階は貸事務所、2階3階はワンルームマンションとしたプランニングに挑戦!
それ以外・3階建
延床面積:92m² [27.83坪]
4LDK / 2階建
プラン24-間口10.3m(5.7間) 2階建て二世帯 延床面積139㎡(42.0坪)
より多くの太陽光を採り入れる為に、建物のカタチをL型にした二世帯住宅です。 1階も2階も北の暗い方にお風呂・洗面・トイレ・階段・寝室を配置。 2階は17帖のLDKにプラスして畳スペース4帖も確保♪ ダイニングテーブルを置かないで、カウンターを造りつける生活スタイル。 2階の天井を吹き抜けにして、屋根裏ロフトスペースとも融合させました。
4LDK・2階建
延床面積:139m² [42.04坪]
6LDK / 3階建
プラン23-二世帯住宅 間口6.3m(3.5間) 3階建て 延床面積145㎡(43.8坪)
1階にはLDK13帖と畳コーナー3帖、ご両親の寝室と洋室、洗面、お風呂、トイレ。 2階、3階は13帖のLDK以外に、ピアノのレッスン専用部屋と洋室4部屋。 玄関と水回りも、すべて完全二世帯住宅です。
6LDK・3階建
延床面積:145m² [43.86坪]
3LDK / 3階建
プラン22-敷地19坪 間口3.6m(2.0間) 3階建て 延床面積115㎡(34.7坪)
土地の幅が4.5m、その中に壁芯3.6mの住宅(実際は外壁の外側の寸法では3.8m) 65㎡(19坪)の土地の中にご希望を目一杯詰め込んだ間取りです。 ビルトインガレージには普通車が入れられ、建物の前に軽1台。 2階は12帖のダイニングキッチンと 9帖のリビングスペース。 3階は7帖・6帖・4帖の3部屋が確保できました。
3LDK・3階建
延床面積:115m² [34.78坪]
1DK / 2階建
プラン21-敷地9坪 店舗兼住宅 間口2.7m(1.5間) 2階建て 延床面積36㎡(10.9坪)
間口1.5間(2.7m) 1、2階合わせて10坪の建物。 土地はたった9坪(30㎡)で建物は5.4坪×2階建て・・・+屋根裏収納庫。 住宅ではなく店舗(美容室経営)の案です。 カットのスペースは二人分確保してあり、 あとは待合とシャンプー台とトイレが1階にちゃんと配置できました。 2階は簡単なキッチン&ダイニングスペースと、その奥が休憩室4.2帖。 3階建てにするほどの予算は掛けたくないので、 屋根裏の狭いデッドスペースに収納庫3.1帖造りました。
1DK・2階建
延床面積:36m² [10.89坪]
4LDK / 2階建
プラン20-白い家 間口6.4m(3.5間) 2階建て 延床面積110㎡
1階に居室3部屋。日当たり良い2階にLDKや洗面、お風呂を配置してあります。 リビングの横には畳コーナー4.5帖もありますから 休日ゴロゴロしたい御主人は最高の場所になると思います。 今はやりのスタイロ畳にすれば、お手入れも楽々で一石二鳥です♪
4LDK・2階建
延床面積:110m² [33.27坪]
5LDK / 3階建
プラン19-鉄骨3階建二世帯住宅 間口5.4m(3間) 3階建て 延床面積182㎡(55坪)
重量鉄骨の3階建て、二世帯住宅のプランニング。 1階はご両親用のLDK・寝室・お風呂・洗面洗濯・トイレ。 2階は4人家族用のLDK・洗面洗濯室・トイレと寝室・・・と来客用の和室まで完備! 3階はお孫さん達のお部屋。 バルコニーも9帖分ですから贅沢な空間です。 そして、9帖の屋上ではバーベキューも楽しめます♪
5LDK・3階建
延床面積:182m² [55.05坪]
4LDK / 2階建
プラン18-バイク用ガレージ 間口6.3m(3.5間) 2階建て 延床面積110㎡(33.2坪)
日当たりの良い2階にみんなが集うLDKを配置して欲しい。 洗濯機も2階に置いてリビング横のバルコニーに干して、取り込む生活スタイル、がご希望。 趣味のバイク2台は濡れないようにインナーガレージ! 玄関横に6帖程の駐輪スペースを作りましたので、バイク2台だけとは言わず みんなの自転車も濡れないようにココに入れましょう。
4LDK・2階建
延床面積:110m² [33.27坪]
2LDK / 3階建
プラン17-変形地 間口4.8m(2.6間) 3階建て 延床面積97㎡(29.3坪)
3階に広いバルコニーを作って、花火大会を観たい・バーベキューしたい・夏はビニールプールで遊びたい、 というご要望です。 3階のバルコニーは11帖の広さ♪ ビアガーデン、子どもプールだけでなく『天体観測』という趣味もプラスしてもらいたいです。 2階にもサービスバルコニーを配置したので、ちょっとした洗濯物は洗濯室からすぐ干せます。
2LDK・3階建
延床面積:97m² [29.34坪]
3LDK / 3階建
プラン16-敷地16坪 間口3.6m(2間)3階建4LDK 延床面積70㎡(21.1坪)
1階に玄関・洗面脱衣室とお風呂・あと5帖の洋間が作れます。 細長いので部屋に出来るか? それとも収納庫とするかというところ。 2階にキッチン・ダイニング・リビング。コンパクトですが寛ぎ空間が出来てトイレもあり。 3階に4帖の洋間2部屋とトイレです。 4帖は狭いですが子供部屋なら机とベッドはなんとか入る。 あともう一つ、屋根裏デッドスペース部分を有効利用してみました。
3LDK・3階建
延床面積:70m² [21.17坪]
3LDK / 3階建
プラン15-間口4.5m(2.5間) 3階建て 延床面積120㎡(36坪)
建物内部の1階は インナーガレージと、 基本夜しか使わない寝室&書斎&納戸をまとめて集約してあとはトイレ。 日当たりの良い2階にLDK、3階に子供部屋2室配置。 3階のバルコニーはなんと11帖の広さで 洗濯干しだけじゃもったいないので、友達呼んでBBQ大会やれそうです。 しかもその上、屋上スペースもありますから、家庭菜園や近所の花火大会2つも この高さからなら十分見物できそうです♪
3LDK・3階建
延床面積:120m² [36.3坪]
3LDK / 3階建
プラン14-間口5.4m(3間) 3階建て 延床面積140㎡(42坪)
駐車スペース3台確保。 そのうち1台は玄関を出て、雨に濡れずに乗り降りできるビルトインガレージを希望。 残りの2台は敷地南側(部屋に光を採り込むため)に配置してあります。 このプラン、ぱっと見3LDKになっていますけど、後々5LDKに進化します。 1階の11帖は将来親御さんが介護が必要になった時には 引き取って 半分ミニキッチンや洗面、シャワー室で、半分はベッドルームにできる様 入り口は最初から2か所作ってあります。 同様に3階の8.8帖はとりあえずは御夫婦の寝室にして将来は子供部屋が2つ 欲しくなったら仕切って4.3帖ずつにできます。 それで今は3LDK、 将来5LDK。 リビングの和室も部屋にカウントしたら6LDK♪
3LDK・3階建
延床面積:140m² [42.35坪]
5LDK / 2階建
プラン13-敷地36坪 間口7.8m(4.3間) 2階建て 延床面積110㎡(33.2坪)
幅10m、奥行き12mの土地36坪の土地に 車4台駐車させて、残りの敷地で5LDKを作ろう♪ プロジェクト始動。 みんなが集う1階にリビングは10.8帖とキッチンが5.2帖。 合わせて16帖確保。 2階のバルコニーも8帖分と広くしました。
5LDK・2階建
延床面積:110m² [33.27坪]
2階建
プラン12-間口5.4m(3間) 店舗兼用住宅2階建て 延床面積65㎡(19.6坪)
店舗兼用住宅もよくご依頼いただきます。 今回の用途は2階が事務所兼作業所、ビルトインガレージ式の2階建て。 自分たちの車2台と、来客用2台を停めるために 建物前に2台+建物下に2台、 合計4台のスペースが絶対必要。 2階の建物の重さが、下(1階部分の壁)にズッシリ圧し掛かる訳で、それを支える構造として 【門型フレーム工法】を採用。
それ以外・2階建
延床面積:65m² [19.66坪]
5LDK / 3階建
プラン11-間口4.5m(2.5間) 3階建て 延床面積112㎡(33.8坪)
3階建て住宅、 南側には出窓を5つ取り付けます♪ ただ、南隣に平屋のお宅が隣接しているので、どうしても1階だけは暗く、日当たりが良いのは2階と3階だけです。 なので、昼間でも暗い1階には 夜帰ってくる御主人の部屋と 客間の和室を配置。 2階にLDK、 3階に奥さんと娘さん達の洋間を3つ造りました。
5LDK・3階建
延床面積:112m² [33.87坪]
3LDK / 2階建
プラン10-間口8.3m(4.5間) 2階建て 延床面積134㎡(40.5坪)
1階のリビング横に15帖程のトレーニングルーム。筋トレの器具を置くスペースを確保したのです♪ 2階は今は3室ですが、子ども3人が高学年になってきたら 12帖の部屋を真ん中で仕切って2つに分離できる工夫。 もちろんドアも最初から2か所付けてあります。
3LDK・2階建 (トレーニングジム兼用)
延床面積:134m² [40.53坪]
4LDK / 3階建
プラン9-間口5.4m(3.0間) 3階建て 延床面積122㎡(36.9坪)
子育て世代の場合は抱っこしたり、荷物の出し入れも多いので、屋根付きガレージがあると便利です。 バルコニーの下が駐車スペースになるので雨に濡れません。 20帖のLDKの向こう側に15帖のバルコニー。 洗濯物も良く乾きますし、夏は子供さんのビニールプールで遊ばせるスペースになります。
4LDK・3階建
延床面積:122m² [36.9坪]
3LDK / 2階建
プラン8-旗竿地 間口6.8m(3.7間) 2階建て 延床面積80㎡(24.2坪)
今回は旗竿地でもゆとりのあるコンパクト設計です。 家族の共有スペースを1階に集約。 LDKは16.3帖で人気のリビングイン階段で 家族のコミュニケーションも取りやすい間取りです。 2階の3つの居室はそれぞれに広々とした収納スペースもつけました。
3LDK・2階建
延床面積:80m² [24.2坪]
3LDK / 3階建
プラン7-間口5.0m(2.7間) 3階建て 延床面積98㎡(29.6坪)
ビルトインガレージ3階建て住宅です。 敷地面積56㎡(17坪) 立地条件が角地という事で建ぺい率70% (土地面積を100%と考えて、建築が認められる比率が7割という事) 道路が1方向しかない場合は60%なので土地56㎡×0.6=33.6㎡までですが 10%緩和されて70%だと 56㎡×0.7=39.2㎡まで建てられます。
3LDK・3階建
延床面積:98m² [29.64坪]
3LDK / 2階建
プラン6-間口7.2m(4.0間) 2階建て 延床面積93.1㎡(28.1坪)
壁を高くする事でプライバシーを確保できます。 2階のバルコニーも、あえて壁を閉鎖的に壁で囲ってデザイン性を醸し出します。 住宅ではあるものの、あまり『所帯染みない(生活感を表に出さない)』スタイルを建物から意識しています。
3LDK・2階建
延床面積:93.1m² [28.16坪]
4LDK / 2階建
プラン5-間口6.3m(3.5間) 2階建て 延床面積114㎡(34.4坪)
30坪の敷地に、3つのご要望がありプラン作りました。 1、駐車スペースは2台(普通車1、軽1) 2、隣接建物で1階は真っ暗なので2階南側のバルコニーに面してリビング。 3、玄関に何でも入るウォークイン式シューズクローク。 LDKは、17.5帖の広さを確保できました!
4LDK・2階建
延床面積:114m² [34.48坪]
4LDK / 3階建
プラン4-間口6.4m(3.5間) 3階建て 延床面積103㎡(31.3坪)
間取りは4LDK。 日当たりの良い南側(道路から見て奥側)にLDKや寝室、子供部屋を造って 必然的に洗濯干しのバルコニーも設置。 おばあちゃんが1階で2階がLDK。 3階に御夫婦の寝室と子供部屋2室。04
4LDK・3階建
延床面積:103m² [31.15坪]
5LDK / 2階建
プラン3-間口7.2m(4間) 2階建て5LDK 延床面積148㎡(44.8坪)
2階ホールからもう一つ階段を上がったところに、16帖の小屋裏収納スペース。 屋根の裏なので天井は低め(1.4m)とは言え 16帖もあれば、普段使わないものを何でも入れておけそうです。
5LDK・2階建
延床面積:148m² [44.77坪]
3LDK / 2階建
プラン2-間口5.4m(3間) 2階建て 延床面積88㎡(26.6坪)
お子様たちの独り立ちも見据え、数年後には二人で住む家になると考えています。そこで間取りも予算もコンパクト設計。 1階LDKは13.5帖と決して広くないですが、動線や家具、家電の配置がドンピシャ納まる事で狭く感じない間取り。 ダンスやヨガをここでやる!・・・とかでない限りはコンパクトでも狭さ感じないです。 エアコンの効きも良くなるし、近い距離なら大声で話さなくても聞こえるし! 無駄に広いと物ばっかり溢れ返ってゴッチャゴチャ感が先に目に飛び込む可能性もあります。02
3LDK・2階建
延床面積:88m² [26.61坪]
3LDK / 2階建
プラン1-間口4m(2.2間) 2階建て 延床面積143㎡(43.2坪)
3LDK+ロフト+ビルトインガレージ付き、趣味もくつろぎも大切にして住めるお家になりました。 ビルトインガレージ。車の乗り降りがスムーズで、「造ってよかった!!」とご満足いただけました。 生活のメインスペースは2Fにまとめました。 ご家族がくつろぐLDKは南向きで日当たりがよく、 さらに吹き抜けで開放感あふれるスペースになりました。
3LDK・2階建
延床面積:143m² [43.25坪]